In diesem Abschnitt werden einige Begriffe erläutert, die im Zusammenhang mit Kanalnetzkomponenten häufig verwendet werden. 
Schacht-/Bauwerksbegriffe
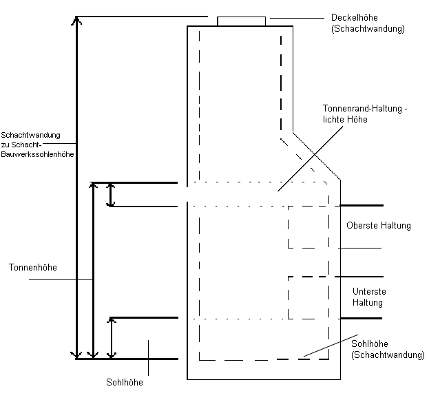
-  Schachtwandung. Die höchste Erhebung eines Schachts oder Auffangbeckens (Abwasserkanalschacht). 
 
-  Rahmen. Die Halterung für die Überdeckung eines Schachts bzw. für den Rost eines Auffangbeckens. Die höchste Erhebung des Rahmens, der Überdeckung und des Rosts stimmt in der Regel mit der Deckelhöhe (Schachtwandung) überein. 
 
-  Überdeckung. Die Überdeckung des obersten Zugangs eines Schachts, der für Wartungsarbeiten oder Inspektionen des Schachts verwendet wird. Überdeckungen sind in der Regel rund, sie können jedoch auch dreieckig sein, damit sie beim Entfernen nicht in den Schacht fallen. Die Überdeckung liegt im Rahmen und ist normalerweise aus Gusseisen. 
 
-  Rost. Die oberste Öffnung eines Auffangbeckens, die normalerweise zahlreiche kleinere Öffnungen enthält, damit das Oberflächenwasser in den Schacht bzw. das Bauwerk hineinfließen kann. Der Rost liegt im Rahmen und ist normalerweise aus Gusseisen. Roste können verschiedene Formen haben, sind aber in der Regel rund oder viereckig. 
 
-  Schacht-/Bauwerkssohle und Sumpftiefe. Unter der Schacht-/Bauwerkssohle versteht man den unteren Bereich bzw. die untere Kammer im Innern eines Abwasserkanalschachts, z. B. ein Auffangbecken. Der Schacht-/Bauwerkssohlenbereich wird gelegentlich als Sammelbecken für Schutt verwendet. Die Sumpftiefe bezeichnet die Entfernung vom untersten Punkt im Innern des Schachts/Bauwerks zur tiefsten Sohle aller daran angeschlossenen Haltungen. Die Sumpftiefe eines bestimmten Schacht-/Bauwerkstyps kann je nach Entwurfsanforderungen unterschiedlich sein. Schächte haben für gewöhnlich keine Sumpftiefe. 
 
Die folgende Abbildung zeigt die Positionen der Komponenten eines typischen Abwasserkanalschachts. 
 
Haltungsbegriffe
-  Sohle. Die niedrigste Erhebung im Innern einer Haltung. Wird auch als Flusslinie bezeichnet. 
 
-  Scheitel. Die höchste Erhebung im Innern einer Haltung. 
 
-  Haltungsprofilachshöhe. Die Höhe der Mittellinie einer Haltung. 
 
-  Überdeckung oder Tiefe. Bezieht sich auf die Tiefe des Materials über der höchsten äußeren Komponente einer Haltung. 
 
-  Neigung. Wenn die Neigung im Zusammenhang mit einer Haltung verwendet wird, dient sie zur Angabe der Steilheit. Bei Haltungen wird die Neigung als Anstieg (oder Gefälle) im Kanalsystem definiert, wobei der Anstieg der horizontal gemessenen Höhendifferenz in einem Kanalsystem entspricht. Die Neigung wird normalerweise in Prozent angegeben. Eine Haltungsneigung von 2 % bedeutet beispielsweise, dass die Haltung alle 100 Meter horizontaler Kanallänge um 2 Meter ansteigt. In AutoCAD Civil 3D kann die Neigung auf unterschiedliche Weise in Dialogfeldern und Beschriftungen in der Zeichnung angezeigt werden.