Câblage des connecteurs

Utilisez les outils Insérer un fil et Liaisons multiples pour ajouter des fils entre les connecteurs.

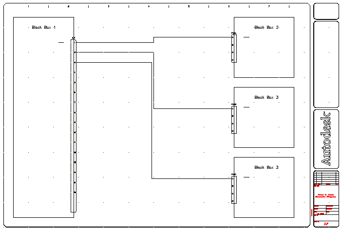
Boîte noire 1 est associée à un plus grand composant comme un boîtier d'alimentation. Boîte noire 2 à Boîte noire 4 sont des composants plus petits qui font partie du boîtier d'alimentation. Les composants doivent être connectés entre eux. Le moyen le plus facile pour les connecter est d'utiliser les outils Insérer un fil et Liaisons multiples.

Connexion des connecteurs

  1. Cliquez sur l'onglet Schémale groupe de fonctions Insérer des fils/numéros d'équipotentiellesla liste déroulante Insérer les filsFil. Trouver
  2. Répondez comme suit aux invites :

    Spécifiez le début du fil ou [Type de fil/X=afficher les connexions] :

    Cliquez sur PJ1 à la broche 1 de la boîte noire 1

    Spécifiez l'extrémité du fil ou [Continuer] : Cliquez sur PJ2 à la broche A de la boîte noire 2.

  3. Répétez ces opérations pour connecter PJ1 (Broche 2) à PJ3 (Broche A) et PJ1 (Broche 3) à PJ4 (Broche A). Cliquez avec le bouton droit pour quitter la commande.

    Notez que l'outil Insérer un fil trace le fil entre les connecteurs tout en évitant les géométries existantes à l'écran.

  4. Cliquez sur l'onglet Schémale groupe de fonctions Insérer des fils/numéros d'équipotentielle Liaisons multiples. Trouver
  5. Dans la boîte de dialogue Liaison à plusieurs fils, spécifiez :

    Espacement horizontal :  0.75

    Espacement vertical :  0.50

    Point de départ :  Composant (plusieurs fils)

  6. Cliquez sur OK.
  7. Répondez comme suit aux invites :

    Sélection dans la fenêtre en commençant par les points de connexion des fils 

    Sélectionnez les broches 5 à 7 de la boîte noire 1 (1) et cliquez avec le bouton droit de la souris

    vers (T= type de fil) :

    Faites glisser les fils vers la droite au-delà des trois fils que vous avez insérés,

    Extrémité (Continuer/basculer) :

    Faites glisser les fils vers le haut vers PJ2 de la boîte noire 2, entrez C et appuyez sur Entrée (pour continuer et verrouiller le glissement).

    vers (Continuer/basculer) :

    Faites glisser les fils vers la droite et connectez les broches B à D sur PJ2 (2)

  8. Cliquez sur l'onglet Schémale groupe de fonctions Insérer des fils/numéros d'équipotentielle Liaisons multiples. Trouver
  9. Dans la boîte de dialogue Liaison à plusieurs fils, cliquez sur OK pour utiliser les paramètres précédents.
  10. Répondez comme suit aux invites :

    Sélection dans la fenêtre en commençant par les points de connexion des fils :

    Sélectionnez les broches 9 à 11 de la boîte noire 1 et cliquez avec le bouton droit de la souris

    vers (T= type de fil) :

    Faites glisser les fils vers la droite,

    Extrémité (Continuer/basculer) :

    Faites glisser les fils vers le haut vers PJ3 de la boîte noire 3, entrez C et appuyez sur Entrée (pour continuer et verrouiller le glissement).

    vers (Continuer/basculer) :

    Faites glisser les fils vers la droite et connectez les broches B à D sur PJ3

  11. Cliquez sur l'onglet Schémale groupe de fonctions Insérer des fils/numéros d'équipotentielle Liaisons multiples. Trouver
  12. Dans la boîte de dialogue Liaison à plusieurs fils, cliquez sur OK pour utiliser les paramètres précédents.
  13. Répondez comme suit aux invites :

    Sélection dans la fenêtre en commençant par les points de connexion des fils : 

    Sélectionnez les broches 13 à 15 de la boîte noire 1 et appuyez sur Entrée.

    vers (T= type de fil) : 

    Faites glisser les fils vers la droite,

    Extrémité (Continuer/basculer) :

    Faites glisser les fils vers le bas vers PJ4 de la boîte noire 4, entrez C et appuyez sur Entrée (pour continuer et verrouiller le glissement).

    vers (Continuer/basculer) :

    Faites glisser les fils vers la droite et connectez les broches B à D sur PJ4