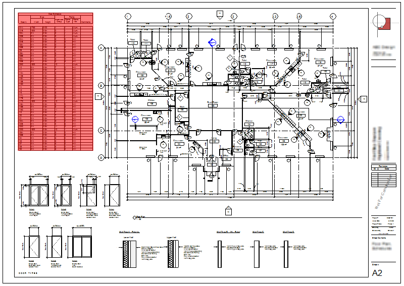
È possibile inserire abachi nelle tavole di una documentazione edilizia.
Lo stesso abaco può risiedere in più tavole.
Argomenti di questa sezione
Aggiunta di un abaco ad una tavola
È possibile aggiungere abachi alle tavole, per corredare di ulteriori informazioni la documentazione del progetto.
Formattazione di un abaco in una tavola
È possibile modificare gli attributi che controllano la visualizzazione di un abaco all'interno di una tavola, ad esempio le linee della griglia e gli attributi di testo.
Regolazione delle colonne dell'abaco in una tavola
È possibile spostare i bordi delle colonne per adattarli al testo non interamente visualizzato in una colonna, in modo analogo a quanto avviene nei fogli di calcolo.
Modifica di un abaco con immagini in una tavola
È possibile regolare la larghezza delle colonne e l'altezza delle righe della finestra dell'abaco nella tavola, al fine di ottimizzare la visualizzazione dell'immagine.