次に、単純なファミリから複雑なファミリまで例を示します。これらの例を見て、設計のニーズを満たすファミリの作成方法を習得してください。
各サンプル ファミリで、RFA ファミリ名をクリックしてファミリ ファイルをダウンロードします。その後、ファミリを調べて、その設定方法と動作を確認できます。
このプロファイルは単純な 2D の閉じた形状の例です。ファミリをプロジェクトにロードした後、このモールディング プロファイルを選択して、壁の造作材やスイープのあるインプレイス モデルなど、プロファイルの割り当てが可能な場所に使用することができます。
このプロファイル ファミリには拘束は含まれません。形状は静的であり、ファミリにはタイプが 1 つだけ含まれます。

壁の造作材に使用されるモールディング プロファイル
詳細コンポーネント ファミリは、詳細ビューでプロジェクトのモデル ジオメトリを拡張、置換するのに使用する 2D ファミリです。Corrugated_Metal サンプル ファミリは波型羽目板マテリアルの断面を表しています。このファミリはジオメトリをコントロールするための拘束のない円弧セグメントで構成されます。
ファミリのパラメータにはキーノート情報が含まれます。プロジェクトに注釈を付けるときにキーノートを使用する場合は、ビューにキーノート タグを配置するとキーノートが解決されます。
詳細要素を隣り合わせに複数回配置する必要がある場合は、次のような詳細コンポーネント ファミリを使用して、繰り返しの詳細を作成することができます。

詳細ビューに表示される波形メタル
プロジェクトの主要プランは、一般注釈ファミリを使用して作成されます。主要プランが必要となるシートやビューに、一般注釈を配置します。サンプルのファミリには、建物のフットプリントと塗り潰し領域を構成する線分が含まれており、表示パラメータに接続されています。そのため、主要プランのさまざまなシェード部分をオンまたはオフに切り替えることができます。
このトラベル線ファミリは一般的な 2 点選択ファミリの例を示します。2 つの点を選択して、トラベル線を配置します。次に、選択した 2 つの点の線分に沿ってジオメトリを配置します。
このファミリは非常口までの距離の計算に使用するよう設計されています。移動パスを表すために、非常口までの経路に沿ってビューに一連のこれらの要素を配置します。ファミリには移動距離とパス ID を表す共有パラメータがあります。これらをタグや集計表とともに使用することで、出口パスにある移動線のすべてのセグメントの距離を計算することができます。
さらに、ファミリには表示パラメータがあり、パスの開始地点の点と終了地点の矢印の表示をコントロールできます。表示コントロールを使用することで、端から端まで配置された複数のセグメントを 1 本の連続するパスとして表示することができます。

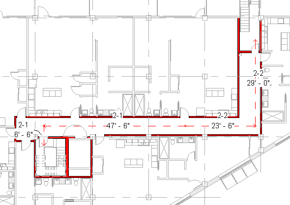
出口を表す平面図
Exiting_Tag.rfa ファミリは Travel_Line.rfa とともに使用します。タグ ファミリは、タグ付けされた移動線の移動距離とパス ID を表す共有パラメータ値を報告する 2 つのラベルで構成されます。
このサンプルのドア ファミリでは既存のドア ファミリに修正を行います。ドアのクリアランスはシンボル線分、押し出し、拘束を使用して作成され、ドア レベルのハードウェアが追加されます。
ドア クリアランスを作成するために、ドアの平面表現にシンボル線分が配置されます。追加のシンボル線分は米国の建築物のアクセシビリティに関する要件のクリアランスを表します。線分はドア ジオメトリに拘束されるため、ドアのサイズが変更されたときに、クリアランスが新しいドアのサイズに調整されます。
シンボル線分には、ドアをプロジェクトに配置するときに表示されないように非表示の線スタイルを使用します。ただし、ドアの上にカーソルを移動したり、プロジェクト内のドアを選択すると線分が表示されます。ドアの 3D 表現では、押し出しはアクセシビリティ クリアランス線分に拘束されます。この方法では、すべてのドアがアクセシビリティ要件を満たしていることを確認するための[干渉チェック]ツールを使用することができます。
ファミリにハードウェアを追加するために、ドア レバー ジオメトリを設定するファミリがドア ファミリに追加されます。ネストされたファミリはファミリ パラメータ ラベルを使用します。それにより 3 つの異なるスタイルでレバー ハードウェアを交換することができます。各レバー ハンドル ファミリはドアの厚さに接続されたパラメータを持ち、ドアの厚さを変更するとハンドルの位置が変更されます。プロジェクトの平面図ビューや、ビューの詳細レベルが[簡略]に設定されている場合に、ドア レバーが表示されないようにハンドル表示が設定されています。
詳細なサンプル ファミリ([最近使用したファイル]ウィンドウから使用可能)は、2 点選択ファミリです。ネストされた要素を含んでおり、ファミリのジオメトリを操作するために式を使用します。このファミリとその機能の詳細については、「式の例」を参照してください。