从其他 CAD 程序中导入绘图视图

可以从其他 CAD 程序中导入视图并将其用作 Revit 图纸视图。 然后可以将绘图视图作为详图索引或剖面的参照,并将其放置在施工图文档集的图纸上。

  1. 单击“视图”选项卡 “创建”面板 (绘图视图)。
  2. 为新绘图视图输入名称和合适的比例。
  3. 单击“插入”选项卡 “导入”面板 (导入 CAD)。
  4. 选择详图和 CAD 格式。
  5. 如果是在详图视图中,请选择“仅当前视图”选项。
    注: 如果是在绘图视图中,则自动进行选择。
  6. 单击“打开”以放置 CAD 详图。
  7. 如果需要,可在图纸上拖放此视图。
  8. 如果需要,在放置详图索引或剖面时,可参照此视图。

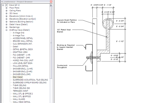
导入的绘图视图的建筑示例

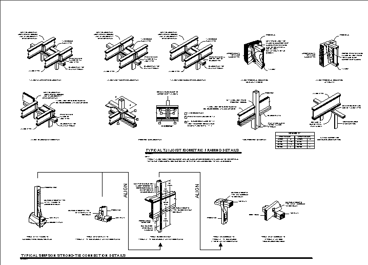
导入的绘图视图的结构示例