Dehnen Sie vorhandene Stecker, und fügen Sie Steckeranschlüsse hinzu, verschieben Sie sie, oder tauschen Sie sie aus.
In der Werkzeugleiste Stecker einfügen stehen Werkzeuge zum Ändern von Steckern und Steckeranschlüssen zur Verfügung. Darüber hinaus können Sie Anschlüsse im Stecker hinzufügen, entfernen oder verschieben.
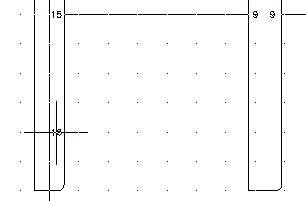
Vorhandene Stecker dehnen


. Finden
Zu dehnendes Ende des Steckers angeben: Wählen Sie den unteren Teil von PJ1
Zweiten Punkt der 3D-Verschiebung angeben:
Ziehen Sie den Stecker zum unteren Teil von Black Box 1.


Steckeranschlüsse hinzufügen


. Finden
Stecker auswählen: Wählen Sie PJ1
Einfügeposition des neuen Anschlusses angeben oder [Zurücksetzen]<16>:
Wählen Sie einen Punkt vier Leerstellen unterhalb von Anschluss 15 auf PJ1, klicken Sie mit der rechten Maustaste, und wählen Sie EINGABE.
Die nächste verfügbare Anschlussnummer (16) wird am gewählten Punkt eingefügt.



. Finden
Stecker auswählen: Wählen Sie PJ6
Einfügeposition des neuen Anschlusses angeben oder [Zurücksetzen]<10>:
Wählen Sie den neuen Anschluss 16 bei PJ1, um den Anschluss am Draht ausgerichtet einzufügen, klicken Sie mit der rechten Maustaste, und wählen Sie EINGABE.

Ändern von Steckeranschlüssen


. Finden
Zu verschiebenden Steckeranschluss wählen: Wählen Sie Anschluss 16 bei PJ1
Neuen Ort für Anschluss 16 angeben: Wählen Sie zwei Abstände über PJ1
Zu verschiebenden Steckeranschluss wählen: Wählen Sie Anschluss 10 bei PJ6
Neuen Ort für Anschluss 10 angeben:
Wählen Sie Anschluss 16 bei PJ1, um den Anschluss 10 am Draht ausgerichtet zu verschieben, und klicken Sie mit der rechten Maustaste.



. Finden
Steckeranschluss auswählen: Wählen Sie Anschluss 16 bei PJ1
Steckeranschluss auswählen: austauschen mit: Wählen Sie Anschluss 16 bei PJ1, und klicken Sie mit der rechten Maustaste


. Finden
Umzudrehenden Stecker auswählen: Wählen Sie den oberen, am Draht ausgerichteten Stecker aus, und klicken Sie mit der rechten Maustaste



. Finden
Anschlussabstand: 1.0
Anschlussanzahl: 2
Fester Abstand
Liste der Anschlüsse: 1
Alles einfügen
Einfügepunkt angeben oder [Z=Zoom, P=Pan, X=drahtkreuzung, V=horizontal/vertikal, TAB=umdrehen]:
Platzieren Sie den Stecker oben in Black Box 1.


. Finden
Zu drehenden Stecker auswählen oder [Beibehalten]:
Wählen Sie den neuen Stecker, klicken Sie mit der rechten Maustaste, und wählen Sie Eingabe.
