Einfügen von Steckern

Erstellen Sie Stecker dynamisch, indem Sie die Steckerparameter definieren, wie z. B. die Anzahl der Anschlüsse, den Anschlussabstand und die Anschlusswerte.

Mit dem Werkzeug Stecker einfügen wird ein Steckersymbol aus benutzerdefinierten Parametern erzeugt. Das Symbol wird unmittelbar erstellt und als eine Blockeinfügung in die aktive Zeichnungsdatei eingefügt. Da die Erstellung nach Bedarf erfolgt, müssen Sie keine Bibliothek mit Steckersymbolen erstellen oder pflegen.

Zeichnungseigenschaften ändern

  1. Falls AEGS nicht das aktive Projekt ist, klicken Sie im Projekt-Manager mit der rechten Maustaste auf AEGS und wählen Aktivieren aus.
  2. Doppelklicken Sie im Projekt-Manager auf AEGS, um die Zeichnungsliste zu erweitern.
  3. Öffnen Sie AEGS10.dwg.
  4. Klicken Sie auf Registerkarte StromlaufplanGruppe Weitere WerkzeugeDropdown-Liste ZeichnungseigenschaftenZeichnungseigenschaften. Finden
  5. Wählen Sie im Dialogfeld Zeichnungseigenschaften Betriebsmittel die Option Sequenziell.
  6. Wählen Sie im Dialogfeld Zeichnungseigenschaften Drahtnummern, Abschnitt Neue Drahtnummernplatzierung die Option Am Draht ausgerichtet.
  7. Klicken Sie auf OK.

Stecker zur Zeichnung hinzufügen

  1. Klicken Sie auf Registerkarte StromlaufplanGruppe Betriebsmittel einfügenDropdownliste Stecker einfügenStecker einfügen. Finden
  2. Geben Sie im Dialogfeld Stecker einfügen Folgendes an:

    Anschlussabstand:  1.0

    Anschlussanzahl:  15

    Fester Abstand

    Liste der Anschlüsse:  1

    Alles einfügen

  3. Klicken Sie auf die Schaltfläche Umdrehen, um den Stecker um seine Längsachse zu drehen.

    Die Vorschau sollte etwa der folgenden Abbildung entsprechen.

  4. Klicken Sie auf Einfügen.

    Es wird eine Vorschau des Steckers angezeigt, die in der Zeichnung platziert werden kann. Die Steckerseite des Steckers wird mit abgerundeten Kanten dargestellt. Der Einfügungspunkt des Steckers ist durch ein "x" gekennzeichnet. Ein Pfeil kennzeichnet die Drahtverbindungsrichtung der Steckerseite für Stecker-/Buchsen- bzw. reine Stecker-Steckereinfügungen oder zeigt die Drahtverbindungsrichtung für eine reine Buchsen-Steckereinfügung an.

    Anmerkung: Drücken Sie die TAB-TASTE, bevor Sie den Steckerumriss in die Zeichnung übernehmen, um den Stecker in vier verschiedene Richtungen zu drehen. Alternativ können Sie mit der Taste V zwischen der vertikalen und horizontalen Ausrichtung wechseln.
  5. Geben Sie bei den Eingabeaufforderungen Folgendes ein:

    Einfügepunkt angeben oder [Z=Zoom, P=Pan, X=drahtkreuzung, V=horizontal/vertikal, TAB=umdrehen]:

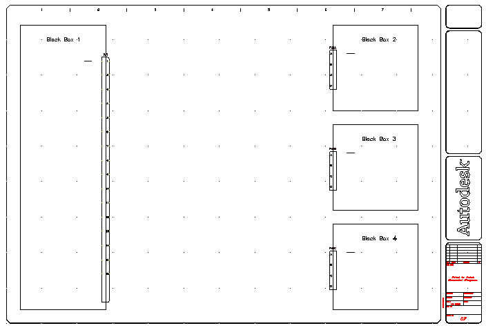
    Platzieren Sie den Stecker in der Mitte des rechten Randes der Black Box 1

    Dem Stecker wurde automatisch die Betriebsmittel-Kennzeichnung PJ1 zugeordnet.

  6. Klicken Sie auf Registerkarte StromlaufplanAbschnitt Betriebsmittel einfügenDropdownliste Stecker einfügenStecker einfügen. Finden
  7. Geben Sie im Dialogfeld Stecker einfügen Folgendes an:

    Anschlussabstand:  0.75

    Anschlussanzahl:  4

    Fester Abstand

    Liste der Anschlüsse:  A

    Alle einfügen

  8. Klicken Sie auf die Schaltfläche Umdrehen, um den Stecker umzudrehen.

    Die Vorschau sollte etwa der folgenden Abbildung entsprechen.

  9. Klicken Sie auf Einfügen.
  10. Geben Sie bei den Eingabeaufforderungen Folgendes ein:

    Einfügepunkt angeben oder [Z=Zoom, P=Pan, X=drahtkreuzung, V=horizontal/vertikal, TAB=umdrehen]:

    Platzieren Sie den Stecker in der Mitte des linken Randes der Black Box 2

    Dem Stecker wurde automatisch die Betriebsmittel-Kennzeichnung PJ2 zugeordnet.

  11. Wiederholen Sie die Schritte 6 - 10, um Stecker zur Black Box 3 und Black Box 4 hinzuzufügen.

    Den Steckern werden die Betriebsmittel-Kennzeichnungen PJ3 bzw. PJ4 zugeordnet.