The Discipline property determines how discipline-specific elements display in a view.
Use the Discipline property to control the following behaviors:
The Discipline property affects views whether you are using a single model that incorporates multiple disciplines, or the model links to other discipline-specific models.
You can also use this property to organize views in the Project Browser. See Organizing Views in the Project Browser.
To set the Discipline property for a view, select the view name in the Project Browser, or open the view. On the Properties palette, the Discipline property is listed in the Graphics section. Select a value from the list.
The examples below are based on a model in which the following is a Level 1 section plan. In the section plan, the green arrow indicates the entire view range for corresponding plan views. The blue arrow indicates the primary view range, which has been extended above the ceiling into the plenum, and below Level 1. The orange arrow indicates the view depth. (See About the View Range.) In the sample plan views below, the Detail Level is set to Fine so that mechanical, electrical, and piping elements display more fully for illustration purposes.

If desired, you can download the model to better understand how the Discipline property affects views: view_discipline_example.rvt
When you create a view based on an existing view, the new view inherits the discipline of the originating view. This rule applies to callouts, sections, elevations, and duplicate views.
For example, suppose you open a structural plan view (a plan view whose Discipline property is set to Structural), and you use the Section tool to create a section of the plan view. The Discipline property of the new section view is also set to Structural.
View tags (the symbols used to indicate sections, elevations, and callouts) display in a view only if the discipline of the current view matches the discipline of the target views. See the examples below.
When the Discipline property is set to Architectural:
For example, the view displays architectural columns and structural columns, as well as mechanical, electrical, and piping elements.
Examples: In the following architectural floor plan:
On one side of the wall, cable trays are exposed. On the other side of the wall, the cable trays are obscured by an architectural cover.
A tag displays for a section view whose
Discipline property is set to
Architectural. The plan does not display tags for views assigned to other disciplines.
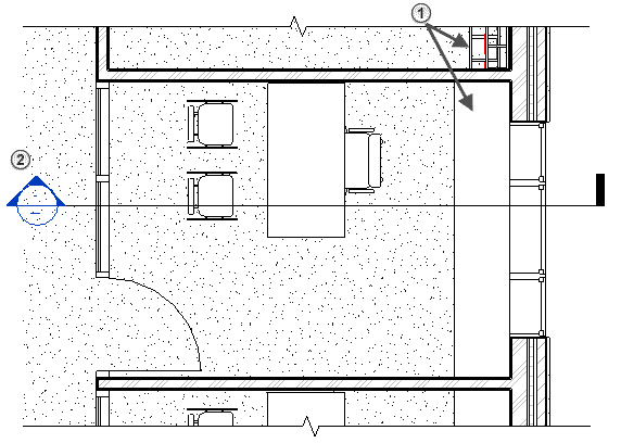
When the Discipline property is set to Structural:
For example, the view displays architectural columns and structural columns, as well as mechanical, electrical, and piping elements.
Examples: In the following structural plan view:
Non-structural walls do not display. (Compare with the architectural plan shown above.)
A tag displays for a section view whose
Discipline property is set to
Structural. The plan does not display tags for views assigned to other disciplines.
Hidden lines display to show structural framing elements below the floor because the plan's view range extends below Level 1.

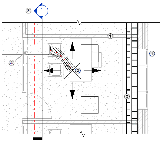
When the Discipline property is set to Mechanical, Electrical, or Plumbing:
Examples: In the following mechanical plan view:
Architectural and structural elements (walls, doors, windows, furniture) display in halftone based on the view range. Ceiling elements do not display in the view.
Mechanical, electrical, and piping elements display as defined by Object Styles. These elements overlay other elements, regardless of their actual vertical location in the model.
A tag displays for a section view whose
Discipline property is set to
Mechanical. The plan does not display tags for views assigned to other disciplines.
Hidden lines for mechanical, electrical, and piping elements display in the view.

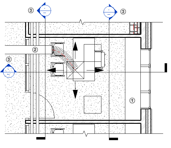
When the Discipline property is set to Coordination:
For example, the view displays architectural columns and structural columns, as well as mechanical, electrical, and piping elements.
Some mechanical, electrical, and piping elements within the view range display regardless of whether the cut plane intersects them.
Furthermore, mechanical, electrical, and piping elements that are above the cut plane are drawn on top of other elements. Among these elements, their draw order is defined by relative heights from the view's level. When these elements occur below the cut plane, they are drawn in order with respect to the distance from the cut plane.
Examples: In the following coordination plan view:
Elements of all disciplines display in the view according to the view range.
Mechanical, electrical, and piping elements display, overlaying other elements according to the rules described above.
Tags display for section views for all disciplines.
