Este método inserta un espacio en áreas complejas en el que el volumen del área compleja está constreñido desde un nivel base a un nivel superior. Puede utilizar este tema al colocar espacios en áreas que abarquen varios niveles, entre los que se incluye un nivel superior voladizo, o en áreas que presenten un solevado como límite superior de una parte del área. En estas situaciones, las líneas de separación de espacios o niveles adicionales se pueden utilizar para dividir estas áreas.
En el Navegador de proyectos, haga doble clic en el plano de planta que contiene el nivel base del área que abarca varios niveles.
A continuación, puede crear una vista en sección para comprobar los espacios verticalmente al colocarlos.
Consejo: Los espacios no se muestran en las vistas de alzado.
Cree vistas en sección
Puede utilizar una vista en sección existente, pero asegúrese de que la línea de sección se interseca con el área en el que se colocarán los espacios.
- Haga clic en la ficha Vista
grupo Crear
Sección.
- En la vista de plano de planta, dibuje dos secciones perpendiculares en el plano de planta, tal y como se muestra.
Asegúrese de que la línea de sección se interseca con el área en la que va a colocar el espacio. Si no es así, el espacio no se mostrará en la vista en sección.
- En el Navegador de proyectos, haga doble clic en la nueva vista en sección para abrirla.
Cree niveles
En este tema se presupone que hay niveles estándar en el diseño, por lo que no es necesario crearlos. Si no existen los niveles, debe crearlos.
- Haga clic en Modificar.
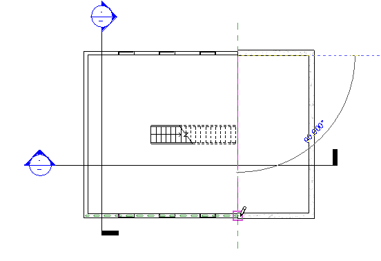
Divida el área mediante las líneas de separación de espacios
- Haga clic en el plano de planta para establecerlo como la vista activa.
- Haga clic en la ficha Analizar
grupo Espacios y zonas
Separador de espacios y dibuje un separador de espacios para dividir el área de acuerdo con los distintos límites superiores. Nota: Las líneas de separación de espacios son componentes delimitadores de habitación.
- En el Navegador de proyectos, abra las dos nuevas vistas en sección.
- Cierre todas las vistas, excepto la dos vistas en sección y el plano de planta donde desea colocar el espacio, y escriba WT en el teclado para mostrar en mosaico las tres vistas.
También puede hacer clic en la ficha Vista
grupo Ventanas
Mosaico.
Active la visibilidad de espacios
- Haga clic en una vista en sección para establecerla como activa.
- Escriba VG en el teclado.
- En la ficha Categorías de modelo del cuadro de diálogo Visibilidad/Gráficos, localice Espacios.
- Expanda Espacios, seleccione Interior y Referencia (si desea que se muestren los cursores en cruz de referencia) y haga clic en Aceptar.
- Repita este proceso para crear otros espacios visible en la otra vista en sección y la vista de plano de planta.
Inserte un espacio
- Con la vista de plano de planta activa, haga clic en la ficha Analizar
grupo Espacio y zonas
Espacio.
- En la barra de opciones, especifique lo siguiente:
- En Límite superior, especifique el nivel superior.
Al especificar el límite superior de un espacio debajo de una cubierta, indique este en el nivel que se encuentra por encima de la parte superior de la cubierta para que el espacio se ajuste a esta. Si no existe ese nivel, créelo. Consulte Colocación de espacios hasta la cubierta para obtener más información.
- En Desfase, escriba 0' 0" (0.00 mm).
Estas dos opciones especifican la extensión o la altura vertical del espacio.
Nota: Si el límite superior y el desfase se extienden más allá del nivel superior, el contorno vertical del espacio se ajustará a un componente delimitador de habitación, como, por ejemplo, un suelo o un techo, aunque el límite superior esté en un nivel más elevado que este componente. Esto se debe a que con la opción Áreas y volúmenes seleccionada (valor por defecto), el contorno vertical del espacio se ajustará a los componentes delimitadores de habitación como, por ejemplo, los techos, los suelos o las cubiertas. El volumen del espacio se calculará hasta los elementos delimitadores de habitación. La opción Áreas y volúmenes se encuentra en la ficha Arquitecto

menú desplegable del grupo Habitación y área

Cálculos de área y volumen.
- En el cuadro Espacio, compruebe que esté seleccionada la opción Nuevo si inserta un espacio nuevo o seleccione un espacio existente en la lista para colocarlo.
Seleccione las siguientes opciones según sea necesario:
- Etiquetar al colocar: coloca una etiqueta de espacio tras la inserción del espacio.
Esta opción está seleccionada por defecto. Si está seleccionada la opción Etiquetar al colocar, puede seleccionar el tipo de etiqueta en el selector de tipo.
- Cuadro Ubicación de etiqueta: permite especificar Horizontal, Vertical o Modelo como ubicación de la etiqueta de espacio.
Esta opción solo está disponible si se ha seleccionado Etiquetar al colocar.
- Directriz: crea una línea directriz para la etiqueta de espacio.
Esta opción solo está disponible si se ha seleccionado Etiquetar al colocar.
- Mostrar elementos delimitadores: resalta los elementos delimitadores de habitación en el modelo de construcción para reconocerlos al instante.
- En la vista de plano de planta, mueva el cursor sobre un área en el modelo de construcción y haga clic para colocar un espacio.
Nota: Los espacios solo se pueden colocar en vistas de plano de planta.
- Haga clic en Modificar.
- Seleccione el espacio.
- En la paleta Propiedades, en Análisis energético, realice una de las siguientes acciones:
- Active Ocupable si el espacio estará ocupado.
- Desactive Ocupable si el espacio estará desocupado.
- Haga clic en Aceptar.
Nota: Si se inserta un espacio en un área que contiene una habitación, el parámetro Ocupable se selecciona automáticamente. Esta acción define el espacio como ocupado. Si el área no contiene una habitación, el parámetro Ocupable se desactivará automáticamente. Esta acción define el espacio como desocupado. Puede volver a definir el espacio en cualquier momento. Para ello, active o desactive este parámetro. El parámetro Ocupable afecta al análisis de cargas de calefacción y refrigeración.
Compruebe los espacios
- En las vistas de plano de planta y en sección, compruebe que las áreas sombreadas que representan el volumen de los espacios estén constreñidas desde el nivel base hasta el nivel superior, y que no haya áreas sin sombrear (provocadas por elementos como, por ejemplo, cavidades o agujeros). Esto proporciona un cálculo de volumen más preciso.
- Si, como se ha indicado, el espacio no está constreñido, en la vista en sección, compruebe que el límite superior del espacio se haya establecido en el nivel ubicado en la parte superior y redefina el espacio verticalmente, si es necesario.
También debe solucionar todas las áreas no sombreadas.
Otros espacios complejos pueden dividirse mediante niveles o líneas de separación de espacios, como se muestra.
Ejemplo de la izquierda: un nivel divide el área horizontalmente. El área inferior tiene su base en el Nivel 1 y su límite superior en el Nivel 2. Se especifica un segundo espacio con su base en el Nivel 2 y su límite superior en el nivel superior de cubierta.
Ejemplo de la derecha: una línea de separación de espacios divide el área verticalmente. El área inferior tiene su base en el Nivel 1 y su límite superior en el nivel superior de cubierta. El espacio 2 utiliza el Nivel 2 como base y el nivel superior de cubierta como límite superior.