Mit den Befehlen Radieren (Entfernen) und Zuschneiden können Sie ausgewählte Bereiche von bitonalen, Graustufen- und Farbbildern entfernen. Durch Radieren und Zuschneiden wird ein Bild dauerhaft geändert.
- Radieren ändert die entfernten Pixel in die aktuelle transparente Farbe für das Bild. Die radierten Bereiche werden transparent, falls die Hintergrundtransparenz für das Bild aktiviert ist. Zum Radieren der Bilddaten wählen Sie Raster
Entfernen oder geben einen der folgenden Befehle ein: iremove, irubarc, irubcirc, irubcircle, irubdiag, irubline, irubpline, irubpoly oder irubrect.
- Zuschneiden löscht Pixeldaten außerhalb des ausgewählten Bereichs. Ist eine Zuschneideumgrenzung nicht rechteckig, wird der Bereich zwischen der Zuschneideumgrenzung und dem rechteckigen Bildrahmen mit der transparenten Farbe gefüllt. Zum Zuschneiden der Bilddaten wählen Sie Raster
Zuschneiden oder geben einen der folgenden Befehle ein: icropcirc, icropdiag, icropline, icroppoly oder icroprect.
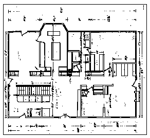
Die Umgrenzungen für Radieren und Zuschneiden können unterschiedliche Formen aufweisen: Kreise, Rechtecke, Linien, Bogen und Polygone. Die Umgrenzung kann mehrere Bilder gleichzeitig umfassen. In der Abbildung des zugeschnittenen Grundrissbilds wird die Größe des Bildrahmens automatisch beim Zuschneiden eines Bilds angepasst.
|
|
|
|
|
Ursprüngliches Bild des Grundrisses
|
Aus Grundriss durch Radieren entfernte Bereiche
|
Zugeschnittener Grundriss
|
Folgende Kernpunkte sind beim Radieren und Zuschneiden zu beachten:
- Wenn zwei Bilder übereinander angeordnet sind und Sie das sichtbare Bild mit Radieren oder Zuschneiden bearbeiten, werden beide Bilder bearbeitet. Sperren Sie den Layer, auf dem sich ein Bildrahmen befindet, um zu verhindern, dass das Bild bearbeitet wird.
- Radier- und Zuschneidevorgänge haben keine Auswirkungen auf Vektoren im Radier- bzw. Zuschneidebereich. Die Befehle beziehen sich nur auf Rasterdaten.
- Beim Radieren werden je nach Status der Hintergrundtransparenz im Bild transparente oder deckende Regionen erstellt.
- Beim Zuschneiden sind nur die Bilder betroffen, die von der Zuschneideumgrenzung berührt werden. Außerhalb dieser Umgrenzung liegende Bilder bleiben unberührt.
- Mit dem Befehl AUTORADIEREN können Sie die Linienbreite für das Radieren bzw. Zuschneiden festlegen sowie die AutoRadieren-Funktion aktivieren bzw. deaktivieren.