È possibile utilizzare i comandi Cancellatura (Rimuovi) e Ritaglia per rimuovere aree selezionate di immagini bitonali, in scala di grigi e a colori. Le cancellature e i ritagli modificano un'immagine in modo permanente.
- Cancellatura modifica i pixel rimossi assegnando agli stessi il colore trasparente corrente dell'immagine. Le aree cancellate diventano trasparenti se per l'immagine è attivata la trasparenza sfondo. Per cancellare i dati dell'immagine, fare clic sul menu Raster
Rimuovi oppure utilizzare uno dei seguenti comandi: iremove, irubarc, irubcirc, irubcircle, irubdiag, irubline, irubpline, irubpoly o irubrect.
- Ritaglia elimina i dati dei pixel che si trovano all'esterno dell'area di selezione. Se un contorno di ritaglio non è rettangolare, l'area compresa tra il contorno di selezione e la cornice rettangolare dell'immagine verrà convertita nel colore trasparente. Per tagliare i dati dell'immagine, fare clic sul menu Raster
Ritaglia oppure utilizzare uno dei seguenti comandi: icropcirc, icropdiag, icropline, icroppoly o icroprect.
I contorni di cancellatura e di ritaglio possono essere composti da forme diverse: cerchi, rettangoli, linee, archi e poligoni. I contorni possono inoltre comprendere più immagini contemporaneamente. Nella figura della pianta ritagliata, notare che la dimensione della cornice viene adattata automaticamente quando si ritaglia un'immagine.
|
|
|
|
|
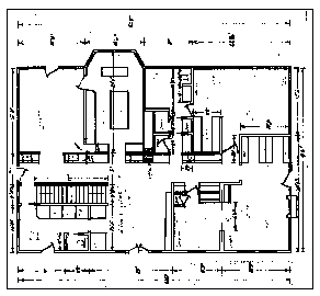
Immagine della pianta originaria
|
Aree cancellate dalla pianta
|
Pianta ritagliata
|
Qui di seguito vengono forniti alcuni concetti fondamentali per le operazioni di cancellatura e di ritaglio:
- Quando due immagini sono sovrapposte e si cancella o si ritaglia l'immagine visibile, vengono modificate entrambe le immagini. Bloccare il layer su cui si trova la cornice di un'immagine per evitare che l'immagine venga modificata.
- Le cancellature e i ritagli non hanno effetto sui vettori nell'area di cancellatura o ritaglio. I comandi hanno effetto solo sui dati raster.
- Le cancellature creano regioni di colore trasparente o uniforme, a seconda dello stato della trasparenza sfondo dell'immagine.
- Il ritaglio ha effetto solo sulle immagini interessate dal contorno di ritaglio. Le immagini esterne a tale contorno restano invariate.
- È possibile utilizzare il comando AutoRub per impostare lo spessore della linea di cancellatura/ritaglio e per attivare o disattivare la funzione di cancellatura automatica.