プレキャスト施工図ビューで取り付けパーツに寸法を記入するワークフローのさまざまな例を確認します。
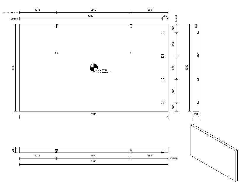
取り付けパーツがホストの同じ側に配置されている場合、同じファミリのすべての取り付けパーツの寸法は 1 つの線上に配置されます。この配置は要素の中心を参照します。ファミリ名が同じで、ホストの中心より上にあるすべての取り付けパーツの寸法は、要素の上に記入されます。中心より下にある取り付けパーツの寸法は、要素の下に記入されます。垂直の寸法線の場合も同じ規則が適用されます。取り付けパーツの寸法点の他に、ホストの範囲を示す寸法点が寸法線に追加されます(左右、または上下に 1 点ずつ)。



[セグメント化]パネル
(分割)をクリックして、壁を分割します。
[接合]パネル
(取り付けパーツ)をクリックして、アンカー プレートをアセンブリに追加します。
[製造]パネル
(製作図)をクリックして、アセンブリの製作図を作成します。

サブカテゴリの名前に基づいて、(ファミリ内での表示のように)上からアンカー プレートを表示している場合にのみ、寸法線が作成されます。この例の壁の場合は、正面からのビューにのみ作成されます。


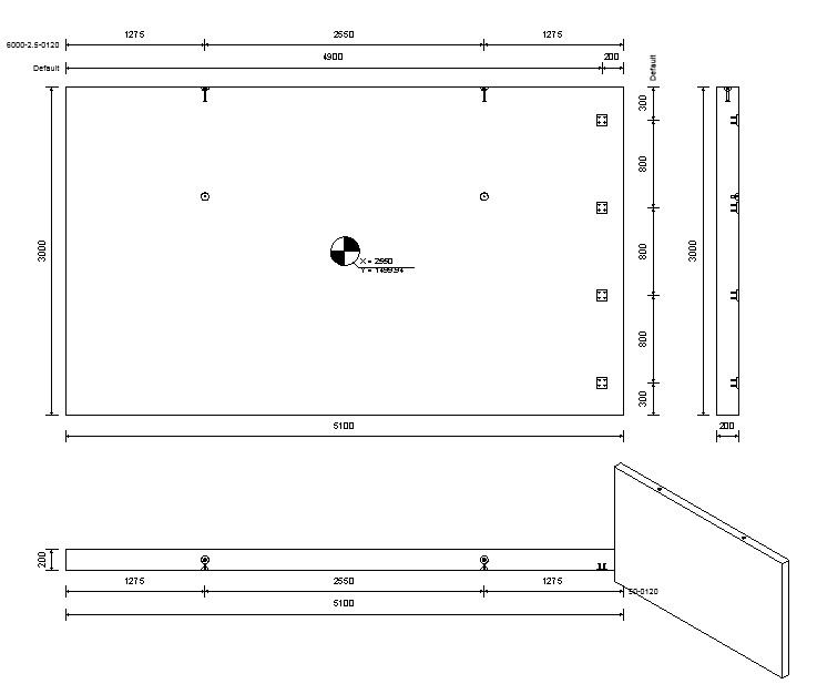
最初の例と同様にサブカテゴリと表示パラメータを設定します。
[セグメント化]パネル
(分割)をクリックして、壁を分割します。
[接合]パネル
(取り付けパーツ)をクリックして、アンカー プレートをアセンブリに追加します。
[製造]パネル
(製作図)をクリックして、アセンブリの製作図を作成します。

[製造]パネル
(製作図)をクリックして、アセンブリの製作図を作成します。

すべてのビューでアンカー プレートの範囲に寸法が記入されます(常に同じファミリであるため、1 つの寸法を使用します)。
上面ビューと正面ビューで、プレートのみに寸法が記入されています(アンカーには記入されていません)が、これは、このビューではアンカーの円形面のみが表示され、寸法記入するための参照がないためです。


[セグメント化]パネル
(分割)をクリックして、壁を分割します。
[製造]パネル
(製作図)をクリックして、アセンブリの製作図を作成します。
