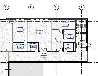
룸 태그

룸과 룸 태그는 별개이지만 서로 관련된 Revit LT 구성요소입니다.

벽 및 문과 같이 룸은 Revit LT의 모델 요소입니다. 룸 태그는 평면 뷰 및 단면 뷰에서 추가 및 표시할 수 있는 주석 요소입니다. 룸 태그에 룸 번호, 룸 이름, 계산된 면적 및 체적과 같은 관련 매개변수의 값을 표시할 수 있습니다.