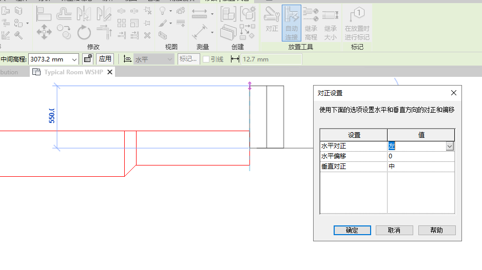
对正设置
使用下列设置来对齐风管。
选择“风管”工具后,单击
(对正设置)可访问该对话框。可以指定下列对正布局选项。
水平对正:
以风管的“中心”、“左”或“右”侧作为参照,将各风管部分的边缘水平对齐。
水平偏移:
用于指定在绘图区域中的单击位置与风管绘制位置之间的偏移。如果要在视图中距另一构件固定距离的地方放置管网,则该选项非常有用。
垂直对正:
以风管的“中”、“底”或“顶”作为参照,将各风管部分的边缘垂直对齐。
父主题:
风管
相关概念
在平面视图中绘制风管
在立面或剖面视图中绘制风管