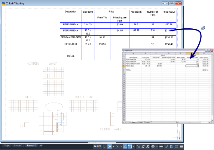
Un tableau peut être lié aux données d'un fichier Microsoft Excel (.XLS, .XLSX ou .CSV). Il peut être lié à une feuille de calcul Excel entière ou à une rangée, une colonne, une cellule ou à une plage de cellules.
Microsoft Excel doit être installé pour utiliser les liaisons de données Microsoft Excel. Pour établir une liaison à un type de fichier .XLSX, Microsoft Excel 2007 doit être installé.
Vous pouvez exporter des données Microsoft Excel dans un tableau de trois façons :
Un tableau contenant des liaisons de données affiche des indicateurs autour des cellules liées. Si vous placez le curseur sur la liaison de données, des informations concernant celle-ci s'affichent.

Si une feuille de calcul liée a été modifiée, par exemple, si une rangée ou une colonne y a été ajoutée, le tableau dans le dessin peut être mis à jour en conséquence à l'aide de la commande MAJLIAISONDONNEES. De même, si une modification a été apportée à un tableau du dessin, vous pouvez mettre à jour la feuille de calcul liée à l'aide de la même commande.

Par défaut, les liaisons de données sont verrouillées pour éviter que des modifications malencontreuses soient apportées à la feuille de calcul. Vous pouvez verrouiller des cellules pour empêcher la modification des données ou du format, ou des deux. Pour déverrouiller une liaison de données, cliquez sur Verrouillage dans l'onglet contextuel du ruban Tableau.