È possibile disegnare una rete di canali aria di varie forme e dimensioni. I raccordi, quali gomiti e T, possono essere posizionati automaticamente in fase di disegno o aggiunti manualmente ai tratti. L'aggiunta manuale è consigliata per i raccordi non specificati nelle preferenze di layout dei canali aria.
Dopo le prime operazioni di layout dell'attrezzatura meccanica, è possibile disegnare una rete di canali aria per connettere attrezzature e creare reti. In AutoCAD MEP toolset sono disponibili numerose funzionalità che semplificano le operazioni di design e di disegno dei tratti di canale aria.
La procedura per l'aggiunta di tratti di canale aria è identica. È possibile aggiungere canali aria come oggetti a linea singola in fase di design dei percorsi preliminari e convertirli in oggetti a linea doppia quando si specificano proprietà quali le dimensioni e il tipo di connessione. I tratti di canale aria a linea singola vengono visualizzati come rappresentazioni unifilari, mentre per i tratti a linea doppia la geometria del canale aria viene visualizzata anche nelle viste assonometriche. Non è indispensabile disegnare tratti come elementi a linea singola fin dall'inizio, poiché è possibile disegnare un canale aria a linea doppia definito in qualsiasi momento.

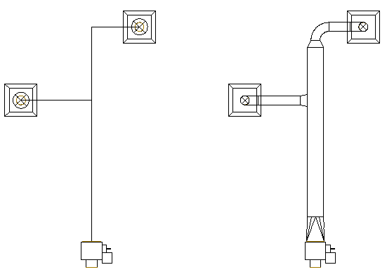
A sinistra, una vista dall'alto di un tratto di canale aria a linea singola; a destra, un tratto di canale aria a linea doppia definito

Il percorso dei tratti di canale aria a linea singola e doppia può essere configurato in 3D
È possibile dimensionare i sistemi di canali aria utilizzando gli strumenti di analisi della progettazione di AutoCAD MEP toolset. È possibile utilizzare il calcolatore delle dimensioni del sistema di canali aria per i sistemi di canali aria e i calcolatori dinamici di dimensione canale aria disponibili nella finestra di dialogo Aggiungi e nella finestra di dialogo Modifica per dimensionare singoli segmenti.