모형 문서 기능을 사용하면 AutoCAD 및 Inventor 3D 모형에서 연관 2D 도면을 생성하고, 여러 타사 제품에서 생성된 3D 모형에서 비연관 2D 도면을 생성할 수 있습니다.
모형 문서 2D 도면의 기본 구성 요소는 도면 뷰 객체입니다.

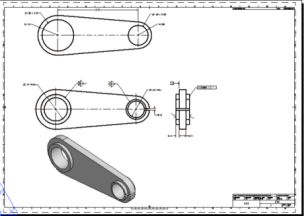
도면 뷰는 3D 모형의 2D 투영을 포함하는 직사각형 객체입니다. 도면 뷰의 경계는 뷰를 선택할 때나 커서를 뷰 위로 이동할 때만 표시됩니다. 도면 뷰 경계는 현재 도면층에 있지만 인쇄되지는 않습니다. 뷰 형상은 항상 표시되며, 미리 정의된 도면층 세트에 작성됩니다. 뷰 형상은 원본 3D 모형과 연관되므로 뷰 형상을 선택해 수정할 수는 없습니다. 그러나 뷰 형상이 그려진 도면층의 특성을 수정하여 뷰 형상의 모양을 변경할 수 있습니다.
도면에 첫 번째로 배치하는 뷰는 기준 뷰입니다. 기준 뷰는 3D 모형에서 직접 파생되는 도면 뷰입니다.

기준 뷰를 배치에 배치한 후에는 해당 배치에서 투영된 뷰를 생성할 수 있습니다. 기준 뷰와는 다르게 투영된 뷰는 3D 모형에서 직접 파생되지 않습니다. 즉, 투영된 뷰는 기준 뷰 또는 이미 배치에 있는 다른 투영된 뷰에서 파생됩니다. 투영된 뷰는 해당 뷰가 생성된 뷰와의 상위-하위 관계를 유지합니다. 하위 뷰의 설정은 대부분 상위 뷰에서 파생됩니다. 필요한 경우 이러한 설정을 재지정할 수 있습니다.
기존 도면 뷰에서 단면 뷰 및 상세 뷰를 생성할 수도 있습니다. 단면 뷰는 모형의 내부 상세 정보를 표시하는 투영된 뷰입니다. 상세 뷰는 모형의 선택한 부분을 확대하여 표시하는 투영된 뷰입니다.
뷰를 작성한 후에는 뷰 형상에 주, 치수, 기호 및 기타 주석을 부착할 수 있습니다.

도면 뷰 객체는 모든 복사 명령에서 필터처리되어 제외되지만 다른 객체와 마찬가지로 이동하거나 회전하거나 지울 수 있습니다.
새 버전의 AutoCAD에서 작성한 도면 뷰는 이전 버전의 AutoCAD에서 편집할 수 없습니다. 예를 들어 AutoCAD 두 버전에서는 모두 같은 AutoCAD 2013 파일 형식으로 저장되지만, AutoCAD 2014에서 작성한 도면 뷰는 AutoCAD 2013에서 편집할 수 없습니다. 즉, 해당 도면 파일에서 도면 뷰 특성을 편집하거나 새 도면 뷰를 추가하거나 도면 뷰를 업데이트할 수 없습니다.