In this exercise, you create a section view, a callout view of the exterior wall, and a detail callout of the parapet. 
  
| | Category | New Users |  | Time Required | 10 minutes |  | Tutorial Files Used | GSG_10_views.rvt | 
 | 
Before you begin, download the GSG_10_views.rvt file. 
		Download this zip file (if you have not already downloaded the exercise files for the tutorials.) 
	 
 
		Objectives 
	 
- Use the Section tool to create a building section view. 
		
- Use controls to change the area included in the section and change the section head display. 
		
- Use the Callout tool to create a wall section view. 
		
- Use the Callout tool to create a detail view of the wall section. 
		
 Watch the video
 Watch the video 
	 
Create a Section View
 
		 
		- Open project GSG_10_views.rvt. 
		  
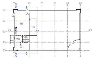
- In the Project Browser, under Floor Plans, double-click 01 - Store Floor. 
		  
- Click View tab Create panel Create panel  (Section). (Section).
- Click outside the south wall of the building near grid 1, move the cursor up until it is outside the building on the north side, and click to place a section line approximately through the middle of the stairs, as shown. 
			 
 
		  
- Click the 
			 flip control ( ) to flip the section so it includes the store room #103. ) to flip the section so it includes the store room #103.
- Click the cycle control ( ) on the top twice, to cycle through the section tail options and display the section head on the top and bottom. ) on the top twice, to cycle through the section tail options and display the section head on the top and bottom.
- Press Esc. 
		  
- Double-click the section head to open the section view. 
			 
 
		  
- On the View Control Bar, click 
			  (Hide Crop Region). (Hide Crop Region).
Create Callout Views
 
		 
		- Click View tab Create panel Create panel  (Callout). (Callout).
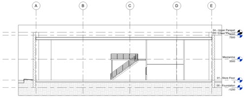
- In the Type Selector, under Section, click Wall Section. 
		  
- To draw a callout around the entire north (left in the section view) wall of the building, from the foundation to the roof, click to define the lower-left corner and click to define the upper-right corner of the box. 
		  
- Select the callout, and use the Drag Head control to drag the callout head so it displays to the upper-left of the callout. 
			 
 
		  
- Press Esc. 
		  
- Double-click the callout head to open the callout view. 
		  
- On the View Control Bar, click 
			  (Hide Crop Region). (Hide Crop Region).
- On the View Control Bar, change the detail level to Medium. 
		  
- On the Create panel, click 
			  (Callout). (Callout).
- In the Type Selector, under Detail View, click Detail. 
		  
- Draw a callout around the wall parapet. 
		  
- Reposition the callout head to the upper-left position. 
			 
 
		  
- Double-click the callout head to open the detail view. 
		  
- On the View Control Bar, click 
			  (Hide Crop Region). (Hide Crop Region).
 
		 
		  Part 11: Adding Dimensions