In this exercise, you complete the interior of the model by adding a staircase to the mezzanine on the lower level, then modifying the railing on the mezzanine. 
  
| | Category | New Users |  | Time Required | 15 minutes |  | Tutorial Files Used | GSG_09_stairs_railings.rvt | 
 | 
Before you begin, download the GSG_09_stairs_railings.rvt file. 
		Download this zip file (if you have not already downloaded the exercise files for the tutorials.) 
	 
 
		Objectives 
	 
- Create a stair between the store floor and the mezzanine. 
		
- Modify the stair railing to include the mezzanine. 
		
- Change the railing type to a pipe railing. 
		
 Watch the video
 Watch the video 
	 
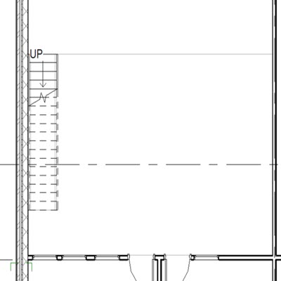
Create Stairs
 
		 
		- Open project GSG_09_stairs_railings.rvt. 
		  
- Verify that the 01 - Store Floor floor plan is open. 
		  
- Click Architecture tab Circulation panel Circulation panel  (Stair). (Stair).
- On the Properties palette, under Constraints: 
			 - For Base Level, select 01 - Store Floor. 
				
- For Top Level, select Mezzanine. 
				
- On the Options bar, set the location line to Run:Left. 
				
 
- In the store room, click the corner of the mezzanine underlay to start the stair run. 
		  
- Move the cursor down until the tooltip indicates that 0 risers remain, and click to specify the stair endpoint. 
		  
- On the Mode panel, click 
			  (Finish Edit Mode). (Finish Edit Mode).
Modify the Railing Type
 
		 
		- On the Quick Access Toolbar, click 
			  (Default 3D View). (Default 3D View).
- Select the flat roof and then use 
			  (Temporary Hide/Isolate) on the View Controls Bar and select Hide Element. (Temporary Hide/Isolate) on the View Controls Bar and select Hide Element.
- Select the railing on the side of the stair near the wall. 
			 
 
		  
- In the Type Selector, select 900 mm Pipe Wall. 
		  
- Click Delete Type in the warning dialog. 
		  
- Select the railing on the other side of the stair. 
		  
- In the Type Selector, select 900 mm Pipe. 
			 
 
		  
 
		 
		  Part 10: Creating Views