이 연습에서는 단면도, 외부 벽의 콜아웃 뷰 및 파라펫의 상세 콜아웃을 작성합니다.
|
시작하기 전에 GSG_10_views.rvt 파일을 다운로드합니다. 튜토리얼용 연습 파일을 아직 다운로드하지 않은 경우 이 zip 파일을 다운로드합니다.
목표
작성 패널
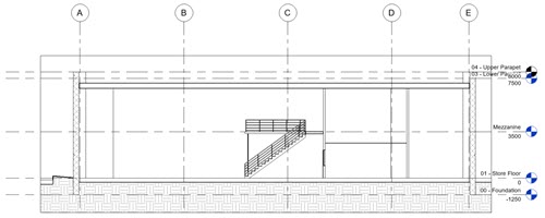
(단면도)를 클릭합니다.

)을 클릭하여 단면도를 반전합니다.
)을 두 번 클릭하여 단면 테일 옵션을 순환하고 위쪽과 아래쪽에 단면 헤드를 표시합니다.


(자르기 영역 숨기기)를 클릭합니다.
작성 패널
(콜아웃)을 클릭합니다.

(자르기 영역 숨기기)를 클릭합니다.
(콜아웃)을 클릭합니다.

(자르기 영역 숨기기)를 클릭합니다.