定義連接器參數 (例如接腳數目、接腳間距和接腳值) 來動態建置連接器。
「插入連接器」工具可依據使用者定義的參數產生連接器符號。符號可以快速建立,並做為圖塊插入來插入至作用中的圖檔。由於這些符號是依需要建立的,因此您無需建立並維護連接器符號資源庫。
變更圖面性質


。 查找
「元件」對話方塊中,選取「循序」。
「配線號碼」對話方塊的「新配線號碼放置」區段中,選取「線內」。
將連接器加入圖面


「插入連接器」。 查找
接腳間距: 1.0
接腳計數: 15
固定間距
接腳清單: 1
全部插入

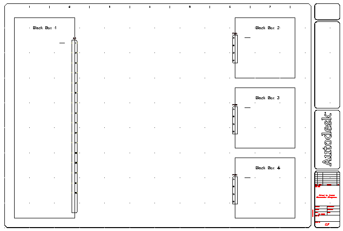
預覽如下圖所示。

將顯示連接器的預覽輪廓,以放置在圖面上。它展示了連接器插頭端的圓角。「x」表示連接器的插入點。箭頭表示插頭/插座或僅插頭連接器插入的插頭端接線方向,或展示僅插座連接器插入的接線方向。
指定插入點或 [Z = 縮放,P = 平移,X = 配線交叉,V = 水平/垂直,TAB = 翻轉]:
進行相應選取以將連接器放置在黑盒子 1 右側邊框的中央

已自動為該連接器指定了 PJ1 元件標籤。


。 查找
接腳間距: 0.75
接腳計數: 4
固定間距
接腳清單: A
全部插入
預覽如下圖所示。

指定插入點或 [Z = 縮放,P = 平移,X = 配線交叉,V = 水平/垂直,TAB = 翻轉]:
進行相應選取以將連接器放置在黑盒子 2 左側邊框的中央

已自動為該連接器指定了 PJ2 元件標籤。
標籤 PJ3 和 PJ4 即會分別指定給連接器。
