使用「插入配線」和「多母線」工具,在連接器之間加入配線。
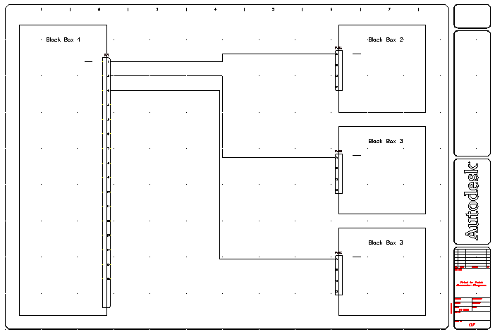
黑盒子 1 與較大元件 (例如電源盒) 相關聯。黑盒子 2 - 黑盒子 4 是屬於電源盒的較小元件。必須使用配線將這些元件連接在一起。執行此作業最簡單的方式是使用「插入配線」和「多配線母線」工具。
使用配線將元件連接在一起


。 查找
指定配線起點或 [配線類型(T)/X = 展示連接(X)]:
按一下黑盒子 1 上接腳 1 處的 PJ1
指定配線末端或 [繼續(C)]: 按一下黑盒子 2 上接腳 A 處的 PJ2

請注意,「插入配線」工具已在連接器之間繪製了配線,同時避免了螢幕上的任何既有幾何圖形。

。 查找
水平間距: 0.75
垂直間距: 0.50
開始於: 元件 (多配線)

窗選接線起始點
在黑盒子 1 (1) 上選取接腳 5 - 7,然後按一下右鍵
到 (T = 配線類型):
穿過您插入的 3 條配線,將配線拖曳至右側,
至點 [繼續(C)/翻轉(F)]:
向上朝黑盒子 2 上 PJ 2 的方向拖曳配線,輸入 C ,然後按 Enter (以繼續並鎖住拖曳)
到 [繼續(C)/翻轉(F)]:
將配線拖曳至右側,並將其連接至 PJ2 (2) 上的接腳 B - D


。 查找
窗選接線起始點:
在黑盒子 1 上選取接腳 9 - 11,然後按一下右鍵
到 (T = 配線類型):
將配線拖曳至右側,
至點 [繼續(C)/翻轉(F)]:
向上朝黑盒子 3 上 PJ 3 的方向拖曳配線,輸入 C,然後按 Enter (以繼續並鎖住拖曳)
到 [繼續(C)/翻轉(F)]:
將配線拖曳至右側,並將其連接至 PJ3 上的接腳 B - D

。 查找
窗選接線起始點:
選取黑盒子 1 上的接腳 13 - 15,然後按 Enter
到 (T = 配線類型):
將配線拖曳到右側,
至點 [繼續(C)/翻轉(F)]:
向下朝黑盒子 4 上 PJ4 的方向拖曳配線,輸入 C,然後按 Enter (以繼續並鎖住拖曳)
到 [繼續(C)/翻轉(F)]:
將配線拖曳至右側,並將其連接至 PJ4 上的接腳 B - D
