沿配線快速移動元件,並插入子元件。
如果未將元件插入至正確的位置,您可以快速移動元件。使用「快速移動」工具可選取元件或配線號碼,並在保持所有物件為連接狀態的情況下將其沿配線前後滑動。您可以選取電路圖的配線或整個橫檔,並將其快速移動至新位置。如果在快速移動的項目中存在任何父元件,則會詢問您是否要為快速移動的元件重新加標籤。
配線號碼、元件、端子、PLC I\O 模組、虛線連結線中的轉折、信號箭頭、配線以及具有配線交叉迴路的配線均可使用「快速移動」工具進行快速移動。

快速移動元件


。 查找
選取用於快速移動的元件、配線或配線號碼:
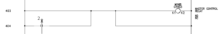
選取之前插入到線參考 403 處的元件
游標會變更為方塊。
選取用於快速移動的元件、配線或配線號碼: 到
將游標移到右邊並按一下,然後按一下右鍵以結束指令
該元件被移動到新位置。

使用「快速移動」工具可以擷取一個元件或配線號碼,然後將其沿配線向前和向後滑動。您可以擷取一條配線或電氣迴路的整個橫檔,然後將其快速移動到新位置,同時保持所有連接關係。
除註解符號的時間不同之外,插入父元件的步驟與插入子元件的步驟完全相同。
插入子元件


。 查找
指定插入點:
將游標置於線參考 404 處的配線上,熱線附近,然後按一下 (1)

螢幕將顯示「插入/編輯子元件」對話方塊。請注意,AutoCAD Electrical 工具集 沒有為繼電器接點自動指定標籤名稱;編輯方塊中僅有一般「CR」。決定繼電器接點標籤名稱。繼電器接點是必須連結到作用中的專案中圖面上的父繼電器線圈的子元件。子元件的標籤名稱與父繼電器線圈相同。
透過按一下「父系/同級」並點選圖面中的父系指定標籤名稱。或按一下「圖面」或「專案」從具有相同族群名稱的元件清單中進行選取。
「MCAB5 CR403 MASTER CONTROL RELAY」

父項的值會立即傳輸至接點。
元件標籤: CR403
描述: 行 1: 主控制
描述: 行 2: 繼電器
交互參考: 403
位置代碼: MCAB5
接腳: 接腳 1: A1X
接腳: 接腳 2: A1Y

子元件已插入。進行即時交互參考。線圈使用新子接點的線參考號進行註解。子接點使用父線圈的線參考位置進行註解。
