Potřebujete často vytvářet výkresy ve více měřítkách, nebo obsahují vaše výkresy výřezy s více měřítky?
Efektivní navrhování může vyžadovat trochu času a plánování. Protože se výkresy, na kterých pracujete, budou stále větší a složitější, bude pravděpodobně nutné nakreslit více řezů a bokorysných pohledů spolu s detaily připojení a základů. Tyto prvky návrhu často využívají opakovaně použitelný obsah a mohou vyžadovat, aby byly zobrazeny v různých měřítkách podle výkresu.
Existují tři různé přístupy, které lze použít k zobrazení objektů poznámek v různých měřítkách:
Hladiny nabízí snadný způsob správy viditelnosti objektů poznámek, které jsou zobrazeny ve více měřítkách. Například hladina A-DETL-DIMS může být použita pro všechny kóty. Pokud potřebujete kóty ve více měřítkách, přidejte hodnotu faktoru měřítka na konec názvu hladiny, například A-DETL-DIMS-24 a A-DETL-DIMS-48 pro 1/2"=1’-0" a 1. /4"=1'-0".
Pokud je definováno více takových hladin, můžete poté snadno přepínat viditelnost hladin a tím zobrazovat kóty, které odpovídají měřítku výřezu. Pokud má například výřez měřítko 1/2"=1'-0" (1/24), rozmrazíte hladinu A-DETL-DIMS-24 a zmrazíte hladinu A-DETL-DIMS-48.
Na předchozím obrázku je hladina A-DETL-DIMS-48 rozmrazena vlevo, zatímco hladina A-DETL-DIMS-24 je rozmrazena vpravo; uprostřed jsou pak rozmrazeny obě hladiny.
Objekty poznámek jsou poznámky s jednou nebo více reprezentacemi v různých měřítkách. Nejsou to samostatné objekty poznámek, jejichž výšku/měřítko nebo zmrazení/rozmrazení hladiny měníte, abyste mohli řídit konečnou velikost a viditelnost ve výřezu. Styly poznámek jsou podobné stylům bez poznámek s tím rozdílem, že ovládají tvorbu objektů poznámek a tím způsob výpočtu konečné výšky nebo měřítka objektu poznámky.
Následující objekty poznámek mohou být poznámkové:
Zde je příklad modelu používajícího objekty poznámek se dvěma různými měřítky: 1/4"=1'-0" a 1/2"=1'-0".
Když je model zobrazen ve výřezu, měřítko výřezu určuje, které zobrazení objektu poznámky bude použito. Pokud měřítko výřezu neodpovídá měřítku objektů poznámek ve výřezu, pak tyto objekty poznámek nejsou zobrazeny. Na předchozím obrázku jsou k objektům textu, kót a multiodkazů přiřazena měřítka 1/4"=1’-0" a 1/2"=1’-0". Proto se všechny poznámky nezobrazují najednou nebo úplně ve výřezu; prvním dvěma výřezům jsou přiřazena měřítka, která odpovídají měřítkům objektů poznámek, zatímco třetí výřez má jiné měřítko.
Abyste získali maximum z cvičení v tomto tématu, je třeba stáhnout si příslušný datový soubor. Datová sada obsahuje načrtnuté soubory výkresů, které vám pomohou při studiu pracovních postupů nebo souvisejících funkcí.
Stažení: Vzorové soubory, které se použijí ve cvičeních v následujících částech.
Než se naučíte objekty poznámek vytvářet a upravovat, podívejme se, jak fungují ve výřezech. V tomto cvičení zadáte existující výřez ve vzorovém výkresu a změníte měřítko výřezu, čímž se také změní měřítko poznámky. Po změně měřítek se objekty ve výkresu zobrazí v měřítku a reprezentace každého objektu poznámky, které odpovídají danému měřítku, se zviditelní. Reprezentace každého objektu poznámky, které neodpovídají novému měřítku, se nastaví jako neviditelné.
V části Příprava na cvičení v tomto tématu naleznete informace o tom, odkud stáhnout datovou sadu.


Okraj výřezu by nyní měl být zvýrazněn, aby bylo jasné, že je nyní aktivní modelový prostor.
Tento kurzor naznačuje, že poznámka je popisná.

Aby bylo možné změnit měřítko výřezu, je nutné jej nejprve odemknout.


Po změně měřítka výřezu se pohled oddálí a změní se viditelná poznámka. Objekty poznámek s měřítkem poznámky 1/4"=1'-0" jsou nyní viditelné, zatímco objekty s měřítkem poznámky 1/2"=1’-0" jsou neviditelné.

Obnoví se předchozí měřítko výřezu spolu s viditelností objektů poznámek s měřítkem poznámky 1/2"=1'-0".
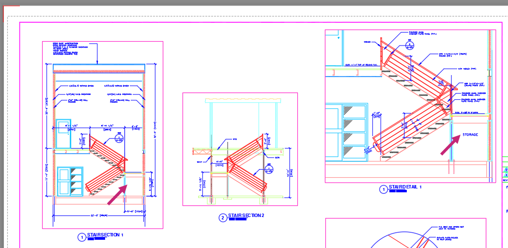
V tomto cvičení jste viděli, jak lze objekty poznámek použít k řízení viditelnosti a výšky/měřítka poznámek ve výřezu. V dalších částech se naučíte, jak vytvořit text poznámky a řídit jeho viditelnost ve výřezu DETAIL SCHODIŠTĚ 1 a ŘEZ SCHODIŠTĚ 1.
I když pracovní postup vytváření textu poznámek, kót, šrafování atd. je podobný, tento článek se zaměřuje pouze na vytváření víceřádkového textu poznámky. Vytváření popisného a nepoznámkového (běžného) textu je podobné, s výjimkou použití stylu textu poznámky a konečné výšky vytvářeného textu. Výška textu je vypočtena na základě měřítka, ve kterém bude text zobrazen.
V následujícím textu je vysvětlen způsob výpočtu výšky textu pro umístění v modelovém prostoru na základě výběru použití textu bez poznámek nebo poznámek:
Výšku textu vypočítáte ručně. Pokud například chcete zobrazit text s výškou textu na papíru 1/16" (0,0625) ve výřezu s měřítkem 1/2"=1’-0" (faktor 24), vytvoříte text s výškou 1/2".
0.0625 x 24 = 1.5
Aplikace AutoCAD automaticky vypočítá a zobrazí text v nezbytné výšce na základě zadané výšky textu na papíru a přiřazeného měřítka poznámky.
Následující postup vysvětluje, jak vytvořit popisný víceřádkový text (MText):
V části Příprava na cvičení v tomto tématu naleznete informace o tom, odkud stáhnout datovou sadu.









Nový objekt víceřádkového textu byste měli vidět ve výřezu označeném DETAIL SCHODIŠTĚ 1, protože je mu přiřazeno měřítko 1/2"=1’-0". Text nebude zobrazen ve výřezu ŘEZU SCHODIŠTĚ 1, protože je mu přiřazeno měřítko 1/4"=1'-0".

V další části se naučíte přidávat měřítko poznámky k objektu poznámky, které také umožní zobrazení textu ve výřezu ČÁST SCHODIŠTĚ 1 v měřítku 1/4"=1'-0".
Po vytvoření objektu poznámky můžete k objektu přidat další měřítka poznámek nebo odstranit měřítka, která již nejsou potřeba. Nová měřítka poznámek ovlivňují vzhled objektu v modelovém prostoru a ve výřezech v rozvržení.
Následující postup vysvětluje, jak přidat měřítka poznámek k objektu MText poznámky vytvořenému v předchozím cvičení:



Objekt MText se nyní zobrazí ve výřezu ČÁST SCHODIŠTĚ 1 a je zobrazen ve výšce 1/16" textu na základě měřítka výřezu 1/4"=1’-0".

I když jsou objekty poznámek umístěny na hladinách jako jiné objekty, je nejlepší je umístit na vlastní hladiny a řídit jejich viditelnost pomocí aktuálního měřítka poznámek v modelovém prostoru nebo výřezu v rozvržení. Tlačítko Viditelnost poznámky ( Hledat) na stavovém řádku určuje, zda se budou zobrazovat všechny objekty poznámek bez ohledu na měřítka, která jsou jim přiřazena, nebo pouze ty, která odpovídají aktuálnímu měřítku poznámky.
Následující kroky ukazují použití tlačítka Viditelnost poznámky:
Povšimněte si, že všechny objekty poznámek zmizely.

Nyní jsou ve výkresu zobrazeny pouze objekty poznámek s odpovídajícím měřítkem poznámky.
Všechny objekty poznámek by měly být znovu viditelné bez ohledu na aktuální měřítko poznámky.
Při přidání měřítka poznámky k objektu poznámky je vytvořena a zachována nová reprezentace tohoto objektu. Každou z těchto reprezentací můžete zobrazit výběrem objektu poznámky. Na následujícím obrázku je například multiodkaz s přiřazenými měřítky poznámek 1/4"=1'-0" a 1/2"=1’-0", s aktuálním měřítkem poznámky výkresu nastaveným na 1/4"=1’-0".
I když je vybraný objekt poznámky zobrazen ve všech reprezentacích, můžete pomocí úprav uzlů upravit pouze reprezentaci, která odpovídá aktuálnímu měřítku poznámky. Standardní příkazy pro úpravy, například POSUN a MĚŘÍTKO, nelze použít k úpravě reprezentací objektu poznámky.
Obnovení všech reprezentací objektu poznámky:
Styly textu poznámek nejsou k vytvoření textu poznámky nutné, ale pomáhají proces zjednodušit podobně jako jejich protějšky ve stylu textu bez poznámek. Hlavní rozdíl mezi styly textu s poznámkou a textu bez poznámky je vlastnost Poznámka. Když je povolena vlastnost Poznámka a styl je aktuální, je každý text vytvořen s poznámkou. Vlastnost Výška textu na papíru určuje konečnou výšku textu, zatímco vlastnost Přizpůsobit orientaci textu rozvržení definuje, zda je text orientován vzhledem k rozvržení a výřezu, ve kterém je zobrazen.

Existující objekty poznámek a šrafování ve výkresu lze nastavit jako objekty s poznámkou v několika krocích. To může být užitečné při vytváření poznámek v existujícím modelu nebo detailů bez nutnosti opětovného vytváření poznámek nebo objektů šraf.
Následující kroky poskytují přehled o tom, jak změnit objekt bez poznámky na objekt s poznámkou:

Vzorový výkres použitý dříve již měl nastavena měřítka poznámek pro každý výřez v rozvržení PŘÍČNÉ ŘEZY A DETAILY, které odpovídají měřítku každého výřezu. Když vytvoříte nový výřez a nastavíte jeho měřítko, měřítko poznámky se automaticky nastaví tak, aby odpovídalo měřítku výřezu. Pokud se obě měřítka neshodují, můžete kliknout na tlačítko Synchronizace měřítka výřezu () a přizpůsobit měřítko poznámky měřítku výřezu. Když se obě měřítka shodují, je tlačítko Synchronizace měřítka výřezu modré. Další informace o vytváření a změně měřítka výřezů naleznete v části Vyzkoušeli jste již: Výřezy rozvržení s předdefinovaným měřítkem.

Pracujete-li s řezem nebo bokorysným pohledem a detaily ve více měřítkách, objekty poznámek a nastavení měřítka poznámek mohou zjednodušit přidávání poznámek k návrhům. To je předvedeno tím, jak snadno lze zajistit, aby se poznámka zobrazovala ve správné velikosti bez ohledu na měřítko přiřazené k výřezu.
Zde jsou uvedeny příkazy a systémové proměnné související s objekty poznámek a změnou měřítka poznámek ve výkresu.
| Příkaz | Popis |
|---|---|
| POZNOBNOV | Obnoví umístění všech vybraných popisných objektů v alternativním měřítku. |
| POZNAKT | Aktualizuje existující popisné objekty tak, aby se shodovaly s aktuálními vlastnostmi jejich stylů. |
| OBJMĚŘÍTKO | Přidá nebo odstraní podporovaná měřítka pro objekty poznámek. |
| UPRSEZMĚŘ | Řídí seznam měřítek dostupných pro rozvržení výřezů, rozvržení stránek a vykreslování. |
| Systémová proměnná | Popis | Výchozí hodnota | Uložena v |
|---|---|---|---|
| ANNOALLVISIBLE | Skryje nebo zobrazí objekty poznámek, které nepodporují aktuální měřítko poznámky. | 1 | Výkres |
| ANNOAUTOSCALE | Aktualizuje objekty poznámek, aby podporovaly změněné měřítko poznámky. | -4 | Registr |
| ANNOSCALEZOOM | Určuje, zda je přiblížení pomocí kolečka myši ve výřezech výkresového prostoru řízeno určitým měřítkem přiblížení nebo je nezávislé na měřítkách výřezů (starší chování). | 0 | Registr |
| ANNOTATIVEDWG | Určuje, zda se výkres bude nebo nebude při vložení do jiného výkresu chovat jako blok poznámky. | 0 | Výkres |
| CANNOSCALE | Nastaví název aktuálního měřítka poznámky pro aktuální prostor. | 1:1 | Výkres |
| CANNOSCALEVALUE | Vrátí hodnotu aktuálního měřítka poznámky. | 1.0000 | Výkres |
| DIMANNO | Udává, zda aktuální styl kóty je nebo není poznámkový. | 0 | Výkres |
| HPANNOTATIVE | Určuje, zda jsou u nových vzorů šrafování v této relaci poznámky. | 0 | Neuloženo |
| SAVEFIDELITY | Řídí vizuální věrnost objektů poznámek v aplikaci AutoCAD 2007 a dřívějších verzích. | 1 | Registr |
| SELECTIONANNODISPLAY | Určuje, zda jsou alternativní zobrazení měřítka dočasně zobrazena tlumeně, je-li vybrán objekt poznámky. | 1 | Registr |