V této části je uveden popis některých pojmů, které se běžně používají při popisování součástí potrubní sítě. 
  
Pojmy pro stavební objekty
 
		 
	 
 
		-  
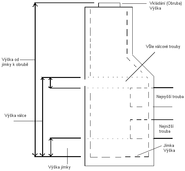
			 Obruba Horní výška stavebního objektu šachty nebo jímky (s více přítoky). 
		  
 
-  
			 Rám Podpěra krytu šachty nebo mřížka jímky. Horní výška rámu, krytu a mřížky se zpravidla shoduje s výškou vložení (obruby. 
		  
 
-  
			 Kryt Horní přístupový kryt šachty, který slouží k jejímu servisu nebo kontrolám. Kryty mají zpravidla kruhový tvar, ale mohou být také trojúhelníkové, takže při vyjmutí nezapadnou do šachty. Kryt je usazen v rámu a bývá zpravidla vyroben z litiny. 
		  
 
-  
			 Mřížka Horní kryt jímky, který obvykle obsahuje řadu otvorů, které umožňují odtok povrchové vody do stavebního objektu. Mřížka je usazena v rámu a bývá zpravidla vyrobena z litiny. Mřížky mohou mít různé tvary, ale zpravidla jsou kruhové nebo čtvercové. 
		  
 
-  
			 Jímka a hloubka mezi dnem potrubí a dnem šachty Jímka představuje spodní část nebo plavební komoru uvnitř stavebního objektu s přípojkami, jako je například jímka. Oblast jímky se někdy používá jako zásobník k zachycování sutě. Hloubka mezi dnem potrubí a dnem šachty představuje vzdálenost od dna nebo vnitřku stavebního objektu k nejnižšímu bodu dna všech potrubí k ní připojených. Hloubka mezi dnem potrubí a dnem šachty pro konkrétní typ stavebního objektu může být různá v závislosti na požadavcích na projekt. Šachty obvykle nemají žádnou hloubku mezi dnem potrubí a dnem šachty. 
		  
 
 
		Následující obrázek uvádí umístění komponent typického stavebního objektu s přípojkami. 
		
 
		
 
	  
Pojmy vztahující se k potrubí
 
		 
	 
 
		-  
			 Dno potrubí Výška dolní vnitřní části potrubí. Bývá také označována jako proudnice rigolu. 
		  
 
- 
			  
			 Vrchol střechovitého sklonu nebo nadpraží. Výška horní vnitřní části potrubí.  
		  
 
-  
			 Výška v ose potrubí Výška osy potrubí.  
		  
 
-  
			 Překrytí nebo hloubka Odkazuje na hloubku materiálu nad nejvyšší vnější částí potrubí. 
		  
 
-  
			 Sklon Při použití sklonu k odkazování na sklon potrubí se jedná o měřítko strmosti. U potrubí je sklon definován zvýšením (nebo poklesem) přes vedení, přičemž výška je rozdíl ve zvýšení podél vedení délky potrubí, měřená horizontálně. Sklon se zpravidla vyjadřuje v procentech. Sklon potrubí 2 % například znamená, že pro každých 100 stop horizontální délky potrubí se potrubí sníží o 2 stopy. V aplikaci Autodesk Civil 3D lze sklon vyjádřit řadou způsobů v dialozích a popiscích ve výkresech. Kladný sklon potrubí označuje, že potrubí je skloněno směrem dolů ve směru toku. Záporný sklon potrubí je nepříznivý sklon potrubí, který značí, že potrubí je skloněno směrem nahoru ve směru toku.