In dieser Übung arbeiten Sie auf verschiedenen Ebenen, um dem Projekt Außenwände, Innenwände und einen Gang hinzuzufügen.
|
Kategorie
|
Neue Benutzer
|
|
Erforderliche Zeit
|
15 Minuten
|
|
Verwendete Lernprogrammdateien
|
GSG_02_Create_Walls.rvt
|
|
Bevor Sie beginnen, laden Sie die Datendatei GSG_02_Create_Walls.rvt herunter. Laden Sie diese ZIP-Datei herunter (falls Sie die Übungsdateien für die Lernprogramme noch nicht heruntergeladen haben).
Ziele
- Hinzufügen von Außenwänden durch Zeichnen mithilfe ausgewählter Punkte.
- Hinzufügen von Innenwänden zur unteren Ebene mit dem Tool Wand.
- Verwenden des Werkzeugs zum Stutzen/Dehnen zur Erstellung einer Öffnung für einen Gang.
Video ansehen
Ändern der Außenwände
- Wählen Sie beim Arbeiten in der 3D-Ansicht die Wände an den Ecken des Gebäudes aus. Verwenden Sie ein Auswahlfenster, und halten Sie die STRG-Taste gedrückt, um Wände zur Auswahl hinzuzufügen.
- Wählen Sie auf der Eigenschaftenpalette für Obere Abhängigkeit 04 – Upper Parapet aus, und klicken Sie auf Anwenden.
- Drücken Sie die ESC-Taste, um die Auswahl der Wände aufzuheben.
- Wählen Sie die beiden Wände an der vorderen rechten Ecke des Gebäudes. Legen Sie auf der Eigenschaftenpalette den Wert Versatz unten auf 4250 mm fest.
- Ändern Sie in der Typenwahl den Wandtyp auf Außen - Putz auf Ziegel auf Block.
Hinzufügen von Innenwänden
- Doppelklicken Sie im Projektbrowser unter Grundrisse auf 01 - Store Floor.
- Klicken Sie auf Registerkarte Architektur
Gruppe Erstellen 
(Wand).
- Wählen Sie in der Typenwahl Innen - 138 mm Trennwand (1- h)
- Gehen Sie in der Optionsleiste wie folgt vor:
- Wählen Sie für Höhe 03 – Lower Parapet aus.
- Wählen Sie für Basislinie Wandachse.
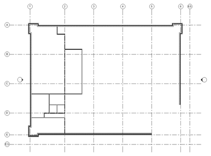
- Verwenden Sie die folgende Abbildung als Anleitung, um Innenwände zur Erstellung von Räumen zu platzieren:
- Eine genaue Positionierung ist nicht erforderlich.
- Beim Platzieren von Wänden kann es hilfreich sein, die Option Kette zu aktivieren bzw. deaktivieren. Kette ermöglicht das Platzieren mehrerer Wände aneinander. Wenn die Option Kette deaktiviert ist, müssen beide Endpunkte der einzelnen Wände angegeben werden. Probieren Sie beide Einstellungen aus.
- Ändern von Wänden zum Erstellen von Gängen:
- Klicken Sie auf
(Ändern), um den Befehl abzuschließen.
Teil 3: Erstellen eines Geländes und einer Sohle