Parte 11: adición de cotas

En este ejercicio, añadirá cotas al modelo de construcción para acotar el perímetro del edificio principal.

Categoría Usuarios nuevos
Tiempo necesario 15 minutos
Archivos de aprendizaje utilizados GSG_11_dimensions.rvt

Antes de comenzar, descargue el archivo GSG_11_dimensions.rvt. Descargue este archivo zip (si aún no ha descargado los archivos de ejercicios de los aprendizajes).

Objetivos

Ver el vídeo

Adición de cotas

  1. Abra el proyecto GSG_11_dimensions.rvt.
  2. Compruebe que el plano de planta 01 - Planta de tienda esté abierto.
  3. Haga clic en la ficha Anotargrupo Cota (Alineada).
  4. En la barra de opciones, seleccione Caras de muro y para Seleccionar, elija Referencias individuales.
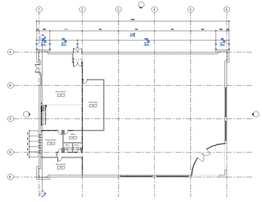
  5. Acote la anchura del edificio:
    • Haga clic en la cara exterior del muro oeste.
    • Haga clic en la cara exterior del muro este.
    • Mueva el cursor sobre el edificio y haga clic para colocar la cota.

Rejillas de cota

  1. En la barra de opciones:
    • Haga clic en la ficha Anotargrupo Cota (Alineada).
    • Para Seleccionar, elija Muros enteros.
    • Haga clic en Opciones.
    • En el cuadro de diálogo Opciones de cota automática, seleccione Rejillas intersecantes y haga clic en Aceptar.
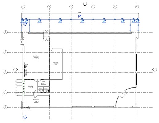
  2. Acote los huecos de ventana y las intersecciones para el muro sur:
    • Haga clic en el muro exterior norte incrustado.
    • Haga clic en los muros este y oeste.
    • Mueva el cursor sobre el edificio y haga clic para colocar la cota.
  3. Haga clic en Modificar.

Acotación de huecos

  1. En la barra de opciones:
    • Haga clic en la ficha Anotargrupo Cota (Alineada).
    • Para Seleccionar, elija Muros enteros.
    • Haga clic en Opciones.
    • En el cuadro de diálogo Opciones de cota automática, seleccione Huecos y haga clic en Aceptar.
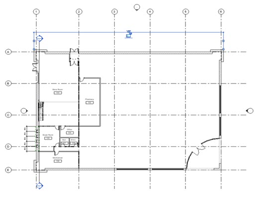
  2. Acote los huecos de ventana y las intersecciones para el muro sur:
    • Haga clic en el muro exterior norte incrustado.
    • Haga clic en los muros este y oeste.
    • Mueva el cursor sobre el edificio y haga clic para colocar la cota.
  3. Haga clic en Modificar.

Parte 12: adición de notas