La proprietà Disciplina determina la modalità di visualizzazione degli elementi specifici di una disciplina in una vista.
La proprietà Disciplina consente di controllare le seguenti funzionalità:
La proprietà Disciplina ha effetto sulle viste, quando si utilizza un singolo modello che include più discipline o quando il modello si collega ad altri modelli di discipline specifiche.
È inoltre possibile utilizzare questa proprietà per organizzare le viste nel Browser di progetto. Vedere Organizzazione delle viste nel Browser di progetto.
Per impostare la proprietà Disciplina per una vista, selezionare il nome della vista nel Browser di progetto oppure aprire la vista. Nella tavolozza Proprietà, la proprietà Disciplina è visualizzata nella sezione Grafica. Selezionare un valore dall'elenco.
Gli esempi che seguono si basano su un modello nel quale è presente la pianta di sezione Level 1. Nella pianta di sezione, la freccia verde indica l'intervallo di visualizzazione completo per le viste di pianta corrispondenti. La freccia blu indica l'intervallo di visualizzazione primario, che è stato esteso al di sopra del soffitto nel vano tecnico e al di sotto del livello Level 1. La freccia arancione indica la profondità della vista. Vedere Informazioni sull'intervallo di visualizzazione. Nelle viste di pianta di esempio in basso, Livello di dettaglio è impostato su Alto, in modo che gli elementi meccanici, elettrici e di tubazioni appaiano con maggiori dettagli, per scopi illustrativi.

Se lo si desidera, è possibile scaricare il modello per comprendere meglio l'effetto della proprietà Disciplina sulle viste: view_discipline_example.rvt
Quando si crea una vista basata su una vista esistente, la nuova vista eredita la disciplina della vista di origine. Questa regola è valida per dettagli, sezioni, prospetti e viste duplicate.
Si supponga ad esempio di aprire una vista di pianta strutturale (una pianta la cui proprietà Disciplina è impostata su Strutturale) e di utilizzare lo strumento Sezione per creare una sezione della vista di pianta. Anche la proprietà Disciplina della nuova vista di sezione verrà impostata su Strutturale.
Le etichette di vista (i simboli utilizzati per indicare sezioni, prospetti e dettagli) appaiono in una vista soltanto se la disciplina della vista corrente corrisponde alla disciplina delle viste di destinazione. Vedere gli esempi di seguito.
Quando la proprietà Disciplina è impostata su Architettura:
Ad esempio, nella vista vengono visualizzate le colonne architettoniche, i pilastri strutturali e gli elementi meccanici, elettrici e di tubazioni.
Esempi: nella seguente pianta del pavimento architettonica:
Su un lato del muro, le passerelle sono visibili. Sull'altro lato del muro, le passerelle sono oscurate da una copertura architettonica.
Viene visualizzata l'etichetta di una vista di sezione la cui proprietà Disciplina è impostata su Architettura. La pianta non visualizza etichette per le viste assegnate ad altre discipline.
Quando la proprietà Disciplina è impostata su Strutturale:
Ad esempio, nella vista vengono visualizzate le colonne architettoniche, i pilastri strutturali e gli elementi meccanici, elettrici e di tubazioni.
Esempi: nella seguente vista di pianta strutturale:
I muri non portanti non vengono visualizzati. (Confrontare con la pianta architettonica visualizzata in precedenza).
Viene visualizzata l'etichetta di una vista di sezione la cui proprietà Disciplina è impostata su Strutturale. La pianta non visualizza etichette per le viste assegnate ad altre discipline.
Vengono visualizzate le linee nascoste per mostrare gli elementi del telaio strutturale al di sotto del pavimento, in quanto l'intervallo di visualizzazione della pianta si estende al di sotto del livello Level 1.

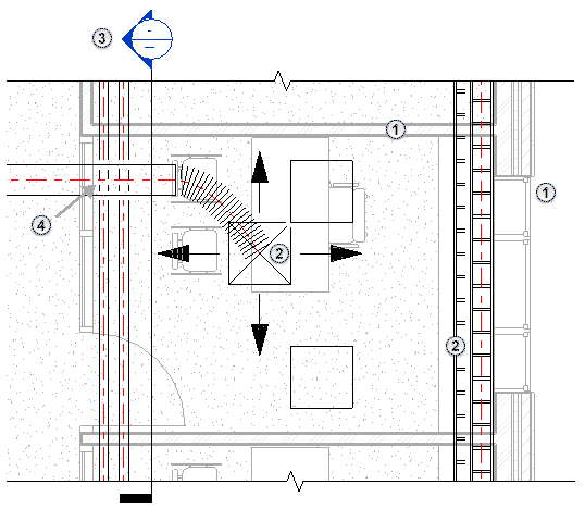
Quando la proprietà Disciplina è impostata su Meccanica, Elettricità o Idraulica:
Esempi: nella seguente vista di pianta meccanica:
Gli elementi architettonici e strutturali (muri, porte, finestre, arredi) vengono visualizzati con mezzitoni, in base all'intervallo di visualizzazione. Gli elementi del controsoffitto non vengono visualizzati nella vista.
Gli elementi meccanici, elettrici e di tubazioni vengono visualizzati in base all'impostazione di Stili degli oggetti. Tali elementi appaiono sovrapposti agli altri elementi, indipendentemente dalla loro posizione verticale effettiva nel modello.
Viene visualizzata l'etichetta di una vista di sezione la cui proprietà Disciplina è impostata su Meccanica. La pianta non visualizza etichette per le viste assegnate ad altre discipline.
Le linee nascoste per gli elementi meccanici, elettrici e di tubazioni vengono visualizzate nella vista.

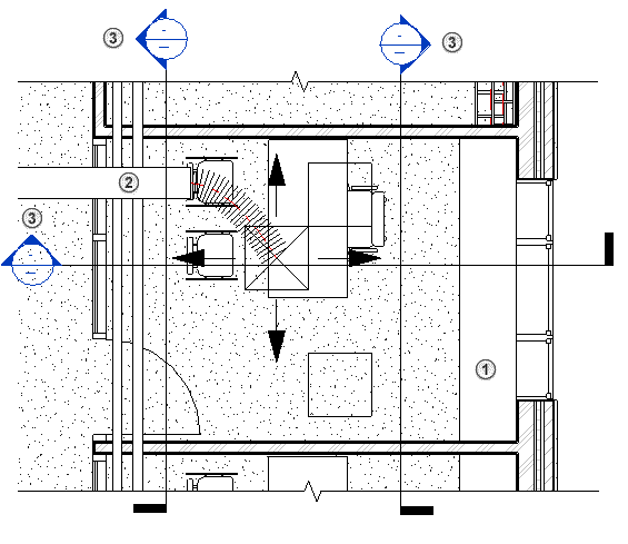
Quando la proprietà Disciplina è impostata su Coordinamento:
Ad esempio, nella vista vengono visualizzate le colonne architettoniche, i pilastri strutturali e gli elementi meccanici, elettrici e di tubazioni.
Alcuni elementi meccanici, elettrici e di tubazioni inclusi nell'intervallo di visualizzazione vengono visualizzati indipendentemente dal fatto che siano intersecati dal piano di taglio.
Inoltre gli elementi meccanici, elettrici e di tubazioni che si trovano al di sopra del piano di taglio vengono disegnati sopra gli altri elementi. Tra tali elementi, l'ordine di disegno è definito dalle altezze relative rispetto al livello della vista. Quando gli elementi si trovano al di sotto del piano di taglio, vengono disegnati in ordine rispetto alla distanza dal piano di taglio.
Esempi: nella seguente vista di pianta di coordinamento:
Nella vista vengono visualizzati gli elementi di tutte le discipline, in base all'intervallo di visualizzazione.
Gli elementi meccanici, elettrici e di tubazioni vengono disegnati sopra gli altri elementi, in base alle convenzioni descritte sopra.
Le etichette delle viste di sezione vengono visualizzate per tutte le discipline.
