ピン数、ピン間隔、ピンの値などのコネクタ パラメータを定義して、コネクタを動的に作成します。
[コネクタ挿入]ツールでは、ユーザ定義のパラメータからコネクタ シンボルを生成できます。シンボルがただちに作成され、アクティブな図面ファイルにブロック挿入として挿入されます。シンボルは必要に応じて作成されるため、コネクタ シンボルのライブラリを作成し、保持する必要がありません。
図面プロパティの変更


の順にクリックします。 検索
[コンポーネント]タブで[連番]を選択します。
[線番]タブの[新規線番の配置]領域で[インライン]を選択します。
図面へのコネクタの追加


の順にクリックします。 検索
[ピン間隔]: 1.0
[ピン数]: 15
[固定間隔]
[ピン リスト]: 1
[すべて挿入]

プレビューは次のようになります。

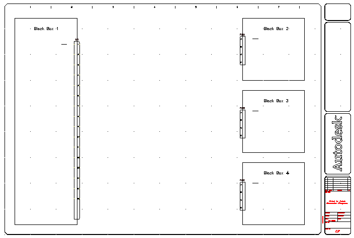
コネクタ形状が図面上の配置されます。コネクタのプラグ側の角が丸められて表示されます。「x」はコネクタの挿入点を示します。矢印は、プラグ/レセプタクルまたは、プラグのみコネクタの挿入のプラグ側配線接続方向を示すか、またはレセプタクルのみコネクタの挿入の配線接続方向を示します。
挿入点を指定 または[ズーム(Z)、画面移動(P)、配線交差(X)、水平/垂直(V)、反転(Tab)]:
ブラック ボックス 1 の右側境界の中央をクリックして、コネクタを配置します。

コネクタに、PJ1 のコンポーネント タグが自動的に割り当てられました。


の順にクリックします。 検索
[ピン間隔]: 0.75
[ピン数]: 4
[固定間隔]
[ピン リスト]: [A]
[すべて挿入]
プレビューは次のようになります。

挿入点を指定 または[ズーム(Z)、画面移動(P)、配線交差(X)、水平/垂直(V)、反転(Tab)]:
ブラック ボックス 2 の左側境界の中央をクリックして、コネクタを配置します。

コネクタに、PJ2 のコンポーネント タグが自動的に割り当てられました。
コネクタに、それぞれタグ PJ3 および PJ4 が割り当てられます。
