コネクタ間にワイヤを追加するには、[配線挿入]ツールと[複数の母線]ツールを使用します。
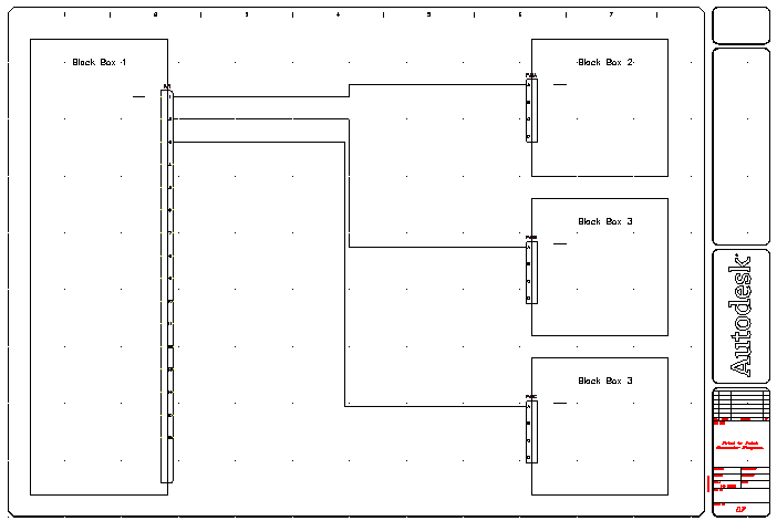
ブラック ボックス 1 は、電源ボックスなど、比較的大きいコンポーネントに関連付けられています。ブラック ボックス 2 ~ 4 は電源ボックスの部品である小さめのコンポーネントです。コンポーネントは一緒に配線されている必要があります。最も簡単な方法は、[配線挿入]ツールと[複数の母線]ツールを使用することです。
コネクタ間の配線


の順にクリックします。 検索
配線の始端を指定 または[配線タイプ(T)/接続点を表示(X)]:
ブラック ボックス 1 上で、ピン 1 の PJ1 をクリックします。
配線の終端を指定 または[続きから(C)]: ブラック ボックス 2 上で、ピン A の PJ2 をクリックします。

[配線挿入]ツールにより、画面上の既存のジオメトリを避けてコネクタ間に配線が引かれます。

の順にクリックします。 検索
水平間隔: 0.75
垂直間隔: 0.50
開始: コンポーネント(複数の配線)

開始配線接続ポイントを窓選択:
ブラック ボックス 1(1)でピン 5 ~ 7 を選択し、右クリックします。
(T=配線タイプ):
挿入した 3 つの配線を超えて右側に配線をドラッグします。
目的のポイント(継続(C)/反転(F)):
配線をブラック ボックス 2 上の PJ2 に向かって上方にドラッグし、 C と入力して [Enter] を押します(続行し、ドラッグをロックするため)。
次の点(継続/反転):
配線を右方向にドラッグし、PJ2(2)上のピン B ~ D に接続します。


の順にクリックします。 検索
開始配線接続ポイントを窓選択:
ブラック ボックス 1 でピン 9 ~ 11 を選択し、右クリックします。
(T=配線タイプ):
配線を右側にドラッグします。
目的のポイント(継続(C)/反転(F)):
配線をブラック ボックス 3 上の PJ 3 に向かって上方にドラッグし、C と入力して、[Enter]を押します(続行し、ドラッグをロックするため)。
次の点(継続/反転):
配線を右方向にドラッグし、PJ3上のピン B ~ D に接続します

の順にクリックします。 検索
開始配線接続ポイントを窓選択:
ブラック ボックス 1 でピン 13 ~ 15 を選択し、[Enter]を押します。
(T=配線タイプ):
配線を右側にドラッグします。
目的のポイント(継続(C)/反転(F)):
配線をブラック ボックス 4 上の PJ4 に向かって下方にドラッグし、C と入力して[Enter]を押します(継続し、ドラッグをロックするため)。
次の点(継続/反転):
配線を右方向にドラッグし、PJ4 上のピン B ~ D に接続します。
