この練習では、異なるレベルで作業して、プロジェクトに外壁、内壁および廊下を追加します。
|
カテゴリ
|
新規ユーザ
|
|
所要時間
|
15 分
|
|
使用するチュートリアル ファイル
|
GSG_02_Create_Walls.rvt
|
|
作業を開始する前に、GSG_02_Create_Walls.rvt データ ファイルをダウンロードします。チュートリアル用の練習ファイルをまだダウンロードしていない場合は、この zip ファイルをダウンロードしてください。
目的
- 選択した点を使用して、外壁を描画して追加します。
- [壁]ツールを使用して、下階レベルに内壁を追加します。
- [トリム/延長]ツールを使用して、廊下に開口部を作成します。
ビデオを見る
外壁を修正する
- 3D ビューで作業しながら、建物のコーナーの壁を選択します。囲み窓の選択を使用して、[Ctrl]キーを押しながら選択に壁を追加します。
- プロパティ パレットの[上部レベル]で、[04 - Upper Parapet]を選択して[適用]をクリックします。
- 壁の選択を解除するには、[Esc]キーを押します。
- 建物の正面右コーナーにある 2 つの壁を選択します。プロパティ パレットで[基準レベル オフセット]を「4250 mm」に設定します。
- タイプ セレクタで、壁の種類を「外部 - ブロック上のレンガのレンダリング」エントリに変更します。
内壁を追加する
- [プロジェクト ブラウザ]の[平面図]で[01 - Store Floor]をダブルクリックします。
- [建築]タブ
[構築]パネル 
(壁)をクリックします。
- タイプ セレクタで[内壁 - 138 mm 間仕切り(1- hr)]を選択します
- オプション バーで、次のようにします。
- [高さ]に[03 Lower Parapet]を選択します。
- [配置基準線]で[壁の中心線]を選択します。
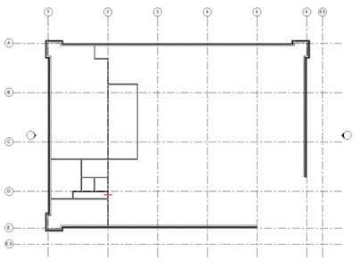
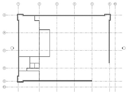
- 次のイメージをガイドとして使用して、内壁を配置して部屋を作成します。
- 正確な配置は重要ではありません。
- 壁をレイアウトするときに[連結]オプションを使用すると便利な場合があります。[連結]を使用すると、複数の壁を終端同士で配置することができます。[連結]を無効した場合は、各壁の両方の端点を指定する必要があります。両方の設定を試してください。
- 壁を修正して、廊下を作成します。
(修正)をクリックし、コマンドを完了します。
パート 3: 地面と建築舗装を作成する