В этом упражнении выполняется создание разреза, фрагмента наружной стены и детализирующего фрагмента парапета.
|
Категория
|
Новые пользователи
|
|
Требуемое время
|
10 мин.
|
|
Используемые учебные файлы
|
GSG_10_views.rvt
|
|
Сначала скачайте файл GSG_10_views.rvt. Скачайте этот файл ZIP (если ранее не скачивали файлы упражнений для учебных пособий).
Цели
- Создание вида разреза здания с помощью инструмента "Разрез".
- Использование ручек управления для изменения области, включенной в разрез и способа отображения заголовка разреза.
- Использование инструмента "Фрагмент" для создания вида разреза стены.
- Использование команды "Фрагмент" для создания вида узла разреза стены.
Посмотреть видеоролик
Создание вида разреза
- Откройте проект GSG_10_views.rvt.
- В узле «Планы этажей» Диспетчера проекта дважды щелкните элемент «01 — Этаж магазина».
- Выберите вкладку "Вид"
панель "Создание"
("Разрез").
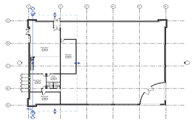
- Щелкните за пределами южной стены здания около линии сетки 1, переместите указатель вверх, пока он не окажется за пределами здания с северной стороны, а затем щелкните, чтобы разместить линию разреза примерно через середину лестницы, как показано на изображении.
- Нажмите ручку разворота (
), чтобы изменить направление разреза, включив в него складское помещение 103.
- Дважды щелкните ручку пролистывания (
) сверху, чтобы просмотреть варианты конца разреза и отобразить заголовок разреза сверху и снизу.
- Нажмите Esc.
- Дважды щелкните заголовок разреза для открытия вида разреза.
- На панели управления видом щелкните
("Скрыть область обрезки").
Создание видов фрагментов
- Выберите вкладку "Вид"
панель "Создание"
("Фрагмент").
- В списке "Выбор типа" в разделе "Разрез" выберите параметр "Разрез стены".
- Чтобы нарисовать фрагмент вокруг всей северной (слева на виде разреза) стены здания от фундамента до крыши, сначала задайте щелчком нижний левый угол, а затем — верхний правый угол.
- Выберите фрагмент и используйте ручку управления "Перетащить заголовок" для перетаскивания заголовка фрагмента, чтобы он отображался в левом верхнем углу фрагмента.
- Нажмите Esc.
- Дважды щелкните заголовок фрагмента, чтобы открыть вид фрагмента.
- На панели управления видом щелкните
("Скрыть область обрезки").
- На панели управления видом измените для этого вида уровень детализации на средний.
- На панели "Создание" щелкните значок
("Фрагмент").
- В списке "Выбор типа" в разделе "Вид узла" выберите элемент "Узел".
- Нарисуйте фрагмент вокруг парапета стены.
- Переместите заголовок фрагмента в верхнее левое положение.
- Дважды щелкните заголовок фрагмента, чтобы открыть вид узла.
- На панели управления видом щелкните
("Скрыть область обрезки").
Часть 11. Добавление размеров