在本练习中,您将在不同的标高上工作,以将外墙、内墙和道路添加到项目中。
|
类别
|
新用户
|
|
所需时间
|
15 分钟
|
|
使用的教程文件
|
GSG_02_Create_Walls.rvt
|
|
在开始之前,请先下载 GSG_02_Create_Walls.rvt 数据文件。 下载此 zip 文件(如果尚未下载教程的练习文件)。
目标
- 添加外墙,方法是使用选定的点绘制它们。
- 使用“墙”工具将内墙添加到下标高。
- 使用“修剪/延伸”工具创建走廊的洞口。
观看视频
修改外墙
- 在三维视图中作业时,选择建筑角点处的墙。使用围窗选择,然后按住 CTRL 键以向选择中添加墙。
- 在“属性”选项板中,选择“ 04 - 上部女儿墙”作为“顶部约束”,然后单击“应用”。
- 按 Esc 键,即可取消选择墙。
- 选择建筑右前角的两面墙。在“属性”选项板上,将“底部偏移”设置为“4250mm”。
- 在“类型选择器”中,将墙类型更改为“外部 - 带粉刷砖与砌块复合墙 @ 入口”。
添加内墙
- 在“项目浏览器”的“楼层平面”下,双击“01 - Store Floor”。
- 单击“建筑”选项卡
“构建”面板
(门)。
- 在“类型选择器”中,选择“内部 - 138mm 隔断(1 小时)”。
- 在选项栏上:
- 选择“03 下部女儿墙”作为“高度”。
- 选择“墙中心线”作为“定位线”。
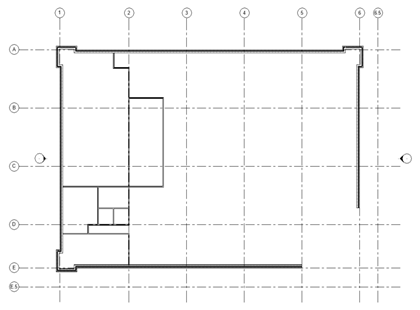
- 参照下图,放置内墙以创建房间:
- 位置是否精确并不重要。
- 布置墙时,启用或禁用“链”选项可能会很有用。链让您可以端到端放置多面墙。在“链”处于禁用状态时,必须指定每面墙的两个端点。尝试使用这两种设置。
- 修改墙以创建走廊:
- 单击
(修改)以完成命令。
第 3 部分:创建地形和建筑地坪