在本练习中,您将完成模型内部,方法是向下标高上的夹层添加楼梯,然后修改夹层上的栏杆扶手。
|
类别
|
新用户
|
|
所需时间
|
15 分钟
|
|
使用的教程文件
|
GSG_09_stairs_railings.rvt
|
|
在开始之前,请先下载 GSG_09_stairs_railings.rvt 文件。 下载此 zip 文件(如果尚未下载教程的练习文件)。
目标
- 在储藏室楼层和夹层之间创建楼梯。
- 修改楼梯栏杆扶手,以包括夹层。
- 将栏杆扶手类型更改为管道栏杆扶手。
观看视频
创建楼梯
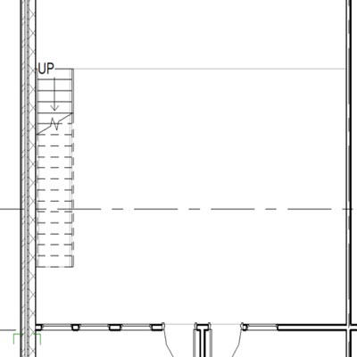
- 打开项目 GSG_09_stairs_railings.rvt。
- 确认已打开“01 - Store Floor”楼层平面。
- 单击“建筑”选项卡
“循环”面板 
(楼梯)
- 在“属性”选项板的“限制条件”下:
- 选择“01 - Store Floor”作为“基准标高”。
- 选择“夹层”作为“顶部标高”。
- 在“选项栏”上,将定位线设置为“梯段:左”。
- 在储藏室中,单击夹层底图的角点以开始楼梯梯段。
- 向下移动光标,直到工具提示指明已无剩余踢面,然后单击以指定楼梯端点。
- 在“模式”面板上,单击
(完成编辑模式)。
修改栏杆扶手类型
- 在“快速访问工具栏”上,单击
(默认三维视图)。
- 选择平屋顶,然后在“视图控制栏”上使用
(临时隐藏/隔离)并选择“隐藏图元”。
- 选择墙附近楼梯侧的栏杆扶手。
- 在“类型选择器”中,选择“900 mm 管道壁”。
- 在警告对话框中,单击“删除类型”。
- 选择楼梯另一侧的栏杆扶手。
- 在“类型选择器”中,选择“900 mm 管道”。
第 10 部分:创建视图