查看预制施工图上对安装件进行尺寸标注的不同工作流样例。
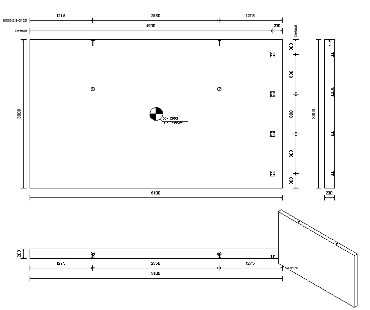
如果安装件均放置在主体的同一侧,则同一族的所有安装件的尺寸标注将放置在一条线上。此放置的参照是图元的中心。将在图元的顶部对位于主体中心顶部的具有相同族名称的所有安装件进行尺寸标注。将在图元下方对中心下方的安装件进行尺寸标注。该规则同样适用于垂直尺寸标注线。除了安装件的尺寸标注点(左侧和右侧各一点或顶部和底部各一点)之外,主体范围中的尺寸标注点也会添加到尺寸标注线。



“细分”面板
(拆分)以拆分墙。
“连接”面板
(安装件)以将锚板添加到部件中。
“制造”面板
(施工图)以创建部件的施工图。

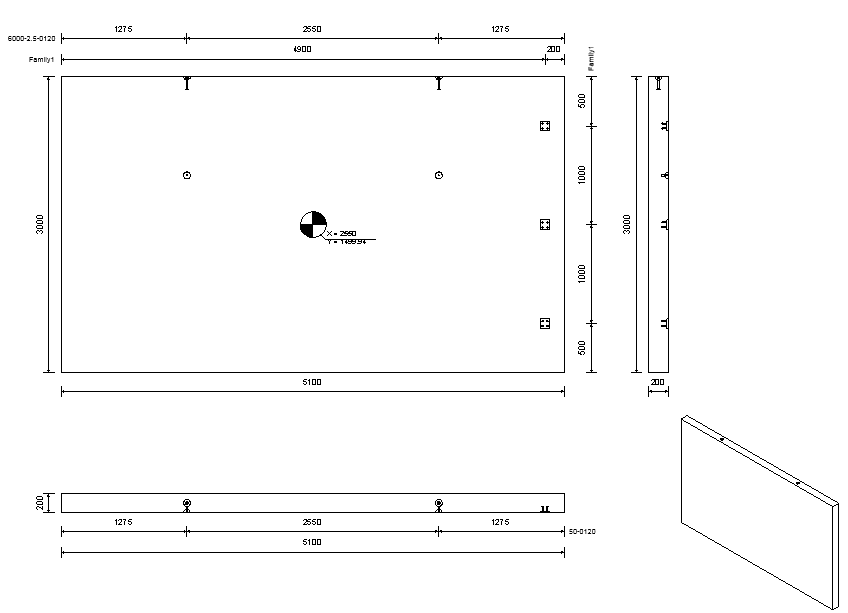
基于子类别的名称,仅当从顶部查看锚板时才应创建尺寸标注线(如族中所显示)。对于此例中的墙,仅在前视图中应该创建尺寸标注线。


设置子类别和可见性参数,如第一个示例中所述。
“细分”面板
(拆分)以拆分墙。
“连接”面板
(安装件)以将锚板添加到部件中。
“制造”面板
(施工图)以创建部件的施工图。

“制造”面板
(施工图)以创建部件的施工图。

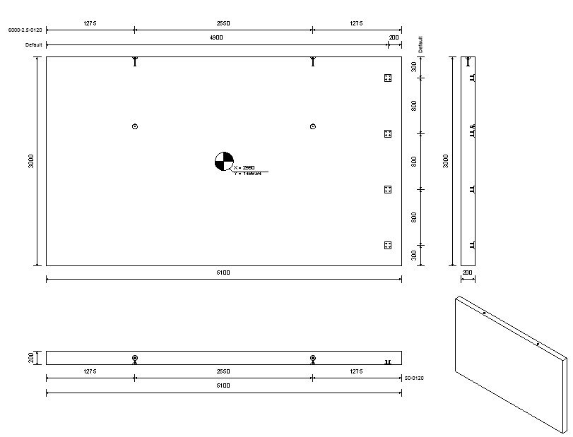
将在所有视图中对锚板的范围进行尺寸标注(使用一个尺寸标注,因为始终是同一个族)。
在俯视图和前视图中,仅会对板(无锚固件)进行尺寸标注,因为在这些视图中仅锚固件的圆形面可见,从而不会为尺寸标注提供任何参照。


“细分”面板
(拆分)以拆分墙。
“制造”面板
(施工图)以创建部件的施工图。
