SimpleTunnelOpenBottom

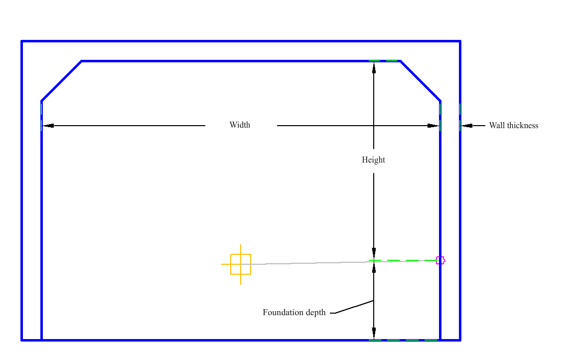
The SimpleTunnelOpenBottom subassembly is for a simple tunnel with open bottom. It uses the height, width, and material thickness that you input.

Attachment

The attachment point is the bottom center of the tunnel.

Input Parameters

Note: Note: All dimensions are in metres or feet unless otherwise noted. All slopes are in run-over-rise form (for example, 4 : 1) unless indicated as a percent slope with a “%” sign.

Parameter

Description

Type

Default

Width Double Input Inside width of the tunnel Numeric, positive

10 ft

3 m

Tunnel Height Inside height of the tunnel Numeric, positive

5 ft

1.5 m

Wall Thickness Width of the walls, and roof of the tunnel Numeric, positive

0.5 ft

.15 m

Shape Name A list of codes to be assigned to the tunnel shape Comma-separated string Tunnel
Tunnel Ceiling link A list of codes to be assigned to the ceiling link Comma-separated string TunnelCeiling
Tunnel Inside Wall Link A list of codes to be assigned to the inside wall link Comma-separated string TunnelInsideWall
Tunnel Top Link A list of codes to be assigned to the top link Comma-separated string TunnelTop
Tunnel Outside Wall Link A list of codes to be assigned to the outside wall link Comma-separated string TunnelOutsideWall
Foundation Depth Depth of the tunnel walls below the tunnel floor Numeric, positive

5 ft

1.5 m

Tunnel Top Right Code A list of codes to be assigned to the top right point Comma-separated string TunnelTopRight
Tunnel Top Left Code A list of codes to be assigned to the top left point Comma-separated string TunnelTopLeft

Target Parameters

None.

Runtime Logical Assignments

None.

Output Parameters

None.

Behavior

The points, links, and shapes are created using the input parameters.

Layout Mode Operation

In layout mode the subassembly displays the links comprising the tunnel.

Point, Link, and Shape Codes

The following table lists the point, link, and shape codes for this subassembly that have codes assigned to them. Point, link, or shape codes for this subassembly that do not have codes assigned are not included in this table.

Point, Link, or Shape

Code

Description

P1 InnerWallMidHeightRight
P2 TunnelInsideWall_Right_Hinge2
P3 TunnelInsideWall_Top_Left
P4 InnerWallMidHeightLeft
P5 Datum, BottomWallOutside
P6 TunnelTopLeft, Top
P7 TunnelTopRight, Top
P9 Datum
P12 TunnelInsideWall_Top_Right
P13 TunnelInsideWall_Left_Hinge1
L1 TunnelInsideWall
L2, L13, L14 TunnelCeiling
L3, L9, L12 TunnelInsideWall
L4, L11, L15 Datum
L5, L10 TunnelOutsideWall
L6 TunnelTop
L12 TunnelInsideWall
S1 Tunnel
S2 Removal

Coding Diagram