FAQ : comment les fonctions de filtrage des points d'accrochage sont-elles utilisées ?

Les commandes "Filtre X", "Filtre Y", "Filtre Z" et "Filtre XY" sont disponibles sur la palette d'outils SCU.

Ces commandes sont utilisées pour déplacer un point d'accrochage d'un objet sur l'une des 3 directions de SCU (X, Y, Z) ou dans le plan XY.

Pour utiliser ces commandes :

  1. Sélectionnez le point d'accrochage de votre choix.
  2. Activez l'un des 4 filtres.
Remarque : Une fois qu'un filtre a été activé, il n'est pas possible de le modifier.

Conversion d'un point d'accrochage dans une direction (X, Y ou Z)

  1. Cliquez sur l'objet de votre choix et sélectionnez le point d'accrochage que vous souhaitez déplacer.
  2. Sélectionnez l'un des 3 filtres (Filtre X, Filtre Y ou Filtre Z) sur la palette d'outils SCU.

    Une fois que le filtre est activé, le point sélectionné se déplacera uniquement dans la direction du filtre.

  3. Cliquez sur un point dans l'espace de travail et notez que l'objet se déplace sur la projection du deuxième point, conformément à la direction de filtre.
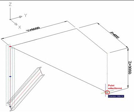
Exemple : déplacement du point d'accrochage supérieur d'une poutre dans une direction
  • Sélectionnez un point d'accrochage supérieur de la poutre créée sur l'axe Z.
  • Activez le filtre X : .
  • Sélectionnez un point dans l'espace de travail avec les coordonnées 4000, 5000, -3000 par rapport au haut de la poutre. Dans ce cas, la partie supérieure de la poutre est déplacée de 4000 unités dans la direction X.

Conversion d'un point d'accrochage dans un plan XY à l'aide de la commande "Filtre XY"

La commande "Filtre XY" déplace le point d'accrochage uniquement dans son plan XY.

  1. Cliquez sur l'objet de votre choix et sélectionnez le point d'accrochage que vous souhaitez déplacer.
  2. Sélectionnez "Filtre XY" sur la palette d'outils SCU. Une fois que le filtre est activé, le point sélectionné se déplacera uniquement dans son plan XY.

    Cliquez sur un point dans l'espace de travail et notez que l'objet se déplace sur la projection du deuxième point dans le plan XY.

Exemple : Déplacement du point d'accrochage supérieur d'une poutre dans le plan XY
  • Sélectionnez un point d'accrochage supérieur d'une poutre créée sur l'axe des Z.
  • Activez le "Filtre XY".
  • Sélectionnez un point dans l'espace de travail avec les coordonnées 2000, 2000, 3000 par rapport au haut de la poutre. Dans ce cas, la partie supérieure de la poutre est déplacée de 2 000 unités dans la direction X et de 2 000 unités dans la direction Y, conformément à la projection du point sélectionné dans le plan XY.