W tym ćwiczeniu dokończysz wnętrze modelu przez dodanie schodów do antresoli na niższym poziomie, a następnie zmodyfikowanie poręczy antresoli.
|
Kategoria
|
Nowi użytkownicy
|
|
Wymagany czas
|
15 minut
|
|
Używane pliki ćwiczeniowe
|
GSG_09_stairs_railings.rvt
|
|
Przed rozpoczęciem pobierz plik GSG_09_stairs_railings.rvt. Pobierz ten plik zip (jeśli jeszcze nie pobrano plików do tych ćwiczeń).
Cele
- Utwórz schody między kondygnacją sklepu a antresolą.
- Zmień poręcz schodów tak, aby wychodziła ona na antresolę.
- Zmień typ poręczy na poręcz rurową.
Obejrzyj nagranie wideo
Tworzenie schodów
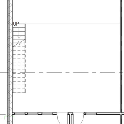
- Otwórz projekt GSG_09_stairs_railings.rvt.
- Upewnij się, że rzut kondygnacji „01 — Kondygnacja sklepu” jest otwarty.
- Kliknij kolejno kartę Architektura
panel Komunikacja
(Schody).
- Na palecie Właściwości, w obszarze Wiązania:
- W polu Poziom bazowy wybierz opcję 01 — Kondygnacja sklepu.
- W polu Poziom góry wybierz opcję Antresola.
- Na pasku opcji ustaw linię położenia na Bieg: lewo.
- W magazynie kliknij narożnik podrysu antresoli, aby rozpocząć bieg schodów.
- Przesuń kursor w dół do momentu wskazania przez podpowiedź, że nie pozostała żadna podstopnica (0 podstopnic), a następnie kliknij, aby wyznaczyć punkt końcowy schodów.
- W panelu Tryb kliknij element
(Zakończ tryb edycji).
Zmiana typu poręczy
- Na pasku narzędzi Szybki dostęp kliknij opcję
(Domyślny widok 3D).
- Wybierz płaski dach, wybierz narzędzie
(Tymczasowo ukryj/izoluj) na pasku sterowania widokiem i wybierz opcję Ukryj tymczasowo element.
- Wybierz poręcz z boku schodów przy ścianie.
- W polu Wybór typu wybierz pozycję Rura 900 mm — montaż ścienny.
- W oknie dialogowym ostrzeżenia kliknij opcję Usuń typ.
- Wybierz poręcz po drugiej stronie schodów.
- W polu Wybór typu wybierz pozycję Rura 900 mm.
Część 10: Tworzenie widoków