Você precisa frequentemente gerar os desenhos em várias escalas ou os desenhos contêm viewports com várias escalas?
Projetar com eficiência pode exigir um pouco de tempo e planejamento. À medida que os desenhos nos quais você trabalha se tornam maiores e mais complexos, provavelmente será necessário desenhar mais vistas de corte e elevação junto com detalhes de conexão e fundação. Esses elementos de projeto frequentemente usam conteúdo reutilizável e podem requerer que sejam exibidos em diferentes escalas com base no desenho.
Há três abordagens diferentes que podem ser usadas para mostrar os objetos de anotação em diferentes escalas:
As camadas têm sido uma abordagem comum para gerenciar a visibilidade de objetos de anotação que são exibidos em múltiplas escalas. Por exemplo, a camada A-DETL-DIMS pode normalmente ser usada para todas as cotas. Se você precisar de cotas em múltiplas escalas, adicione o valor do fator de escala ao final do nome da camada, como A-DETL-DIMS-24 e A-DETL-DIMS-48 para 1/2"=1'-0" e 1/4"=1'-0", respectivamente.
Com várias camadas definidas, você deve controlar a visibilidade das camadas para exibir as cotas que correspondem à escala da viewport. Por exemplo, se a viewport tiver uma escala de 1/2"=1'-0" (1/24), descongele a camada A-DETL-DIMS-24 e congele a camada A-DETL-DIMS-48.
Na imagem anterior, a camada A-DETL-DIMS-48 é descongelada à esquerda, enquanto a camada A-DETL-DIMS-24 é descongelada à direita; ambas as camadas são descongeladas no meio.
Os objetos anotativos são anotações com uma ou mais representações em diferentes escalas, e não objetos de anotação separados dos quais você altera a altura/escala ou congela/descongela a camada atribuída para controlar o tamanho final e a visibilidade em uma viewport. Os estilos anotativos são similares aos estilos não anotativos, exceto que eles gerenciam a criação de objetos anotativos que controlam como a escala/altura final de um objeto de anotação é calculada.
Os seguintes objetos de anotação podem ser anotativos:
Veja um exemplo de um modelo que usa objetos anotativos com duas escalas diferentes: 1/4"=1'-0" e 1/2"=1'-0".
Quando o modelo é exibido em uma viewport, a escala da viewport controla qual representação do objeto anotativo é exibida. Se a escala de uma viewport não coincidir com a dos objetos anotativos na viewport, esses objetos anotativos não serão exibidos. Na imagem anterior, os objetos de texto, cota e linha de chamada múltipla são atribuídos às escalas 1/4"=1'-0" e 1/2"=1'-0". É por isso que nem todas as anotações são exibidas ao mesmo tempo ou em uma viewport completamente; são atribuídas escalas às duas primeiras viewports que coincidem com as dos objetos anotativos, enquanto a terceira viewport tem uma escala diferente.
Obter o máximo dos exercícios neste tópico requer o download de um conjunto de dados. O conjunto de dados contém arquivos de desenho selecionados que ajudam a aprender sobre os fluxos de trabalho ou recursos que estão sendo demonstrados.
Download: Arquivos de amostra usados com os exercícios nas seções a seguir.
Antes de aprender a criar e modificar objetos anotativos, vamos ter uma ideia de como os objetos anotativos funcionam em viewports. Neste exercício, você insere uma viewport existente no desenho de amostra e altera a escala da viewport, que também altera a escala de anotação. Quando as escalas são alteradas, os objetos no desenho aparecem em escala e as representações de cada objeto anotativo que corresponde à escala somente ficam visíveis. As representações de cada objeto anotativo que não corresponde com a nova escala ficam invisíveis.
Consulte a seção Preparar-se para os exercícios anteriormente neste tópico para saber de onde pode fazer o download do conjunto de dados.


A borda da viewport deve ser mais espessa para refletir que o espaço do modelo está agora ativo.
Esse cursor indica que a anotação é anotativa.

A viewport deve ser desbloqueada para que possamos alterar sua escala.


Observe que, após a escala da viewport ser alterada, o zoom foi reduzido e a anotação que estava visível foi alterada. Os objetos anotativos com uma escala de anotação de 1/4"=1'-0" agora são visíveis, enquanto os com uma escala de anotação de 1/2"=1'-0" estão invisíveis.

A escala anterior da viewport é restaurada junto com a visibilidade dos objetos anotativos com uma escala de anotação de 1/2"=1'-0".
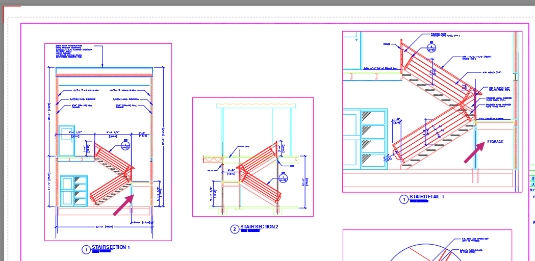
Neste exercício, você viu como os objetos anotativos podem ser usados para controlar a visibilidade e a altura/escala da anotação em uma viewport. Nas próximas seções, você aprenderá a criar texto anotativo e controlar sua visibilidade na viewport DETALHE DA ESCADA 1 e SEÇÃO DA ESCADA 1.
Embora o fluxo de trabalho de criação de texto anotativo, cotas, hachura e assim por diante seja semelhante, este artigo só se concentra na criação de texto anotativo multilinha. A criação de texto anotativo e não anotativo (normal) é semelhante, exceto para o uso de um estilo de texto anotativo e a altura final do texto a ser criado. A altura do texto é calculada com base na escala na qual será exibido o texto.
A seção a seguir explica como a altura do texto é calculada para o posicionamento no espaço do modelo com base na escolha de usar texto não anotativo ou anotativo:
Você calcula manualmente a altura do texto. Por exemplo, se você deseja exibir texto com uma altura de texto de papel de 1/16" (0,0625) em uma viewport dimensionada em 1/2"=1'-0" (fator de 24), será necessário criar o texto com uma altura de 1 1/2".
0.0625 x 24 = 1.5
O AutoCAD calcula e exibe automaticamente o texto na altura necessária com base na altura do texto em papel fornecida e na escala de anotação atribuída.
As etapas a seguir explicam como criar texto anotativo de múltiplas linhas (TextoM):
Consulte a seção Preparar-se para os exercícios anteriormente neste tópico para saber de onde pode fazer o download do conjunto de dados.









Você deve ver o novo objeto TextoM na viewport denominada DETALHE DE ESCADA 1, já que a escala atribuída é 1/2"=1'-0". O texto não será exibido na viewport SEÇÃO DA ESCADA 1, pois a escala 1/4"=1'-0" está atribuída a ele.

Na próxima seção, você aprenderá a adicionar uma escala de anotação a um objeto anotativo que também permitirá que o texto seja exibido na viewport SEÇÃO DA ESCADA 1 em uma escala 1/4"=1'-0".
Depois da criação de um objeto anotativo, será possível adicionar outras escalas de anotação ao objeto ou remover as escalas que não são mais necessárias. As novas escalas de anotação afetam como o objeto aparece no espaço do modelo e em viewports em um layout.
As etapas a seguir explicam como adicionar escalas de anotação ao objeto anotativo TextoM criado no exercício anterior:



Você deve observar que o objeto TextoM agora aparece na viewport SEÇÃO DA ESCADA 1 e é exibido em uma altura de texto de papel de 1/16" com base na escala da viewport 1/4"=1'-0".

Enquanto os objetos anotativos são posicionados em camadas como qualquer outro objeto, é melhor posicioná-los em suas próprias camadas e controlar sua visibilidade usando a escala de anotação atual no espaço do modelo ou na viewport em um layout. O botão Visibilidade da anotação ( Pesquisa) na barra de status controla se todos os objetos anotativos são exibidos, independentemente das escalas atribuídas a eles ou somente aqueles que coincidem com a escala de anotação atual.
As etapas a seguir demonstram o uso do botão Visibilidade da anotação:
Você deve observar que todos os objetos de anotação desapareceram.

Observe agora que somente os objetos anotativos com uma escala de anotação correspondente são exibidos no desenho.
Todos os objetos anotativos devem estar visíveis novamente, independentemente da escala de anotação atual.
Quando você adiciona uma escala de anotação a um objeto anotativo, é criada e mantida uma nova representação desse objeto. É possível ver cada uma dessas representações selecionando um objeto anotativo. Por exemplo, a imagem a seguir mostra uma linha de chamada múltipla atribuída às escalas de anotação 1/4"=1'-0" e 1/2"=1'-0", com a escala de anotação atual do desenho sendo definida como 1/4"=1'-0".
Enquanto você pode ver todas as representações de um objeto anotativo quando ele é selecionado, só é possível modificar a representação que corresponde à escala de anotação atual com a edição com alças. Não é possível usar os comandos de edição padrão, como MOVER e ESCALA, para modificar as representações de um objeto anotativo.
Para redefinir todas as representações de um objeto anotativo:
Os estilos de texto anotativo não são necessários para criar texto anotativo, mas eles ajudam a simplificar o processo de forma muito similar a seus equivalentes de estilo de texto não anotativo. A principal diferença entre os estilos de texto anotativo e não anotativo é a propriedade Anotativo. Quando a propriedade Anotativo está ativada e o estilo é atual, qualquer texto criado é anotativo. A propriedade Altura do texto do papel especifica a altura final do texto, enquanto a propriedade Corresponder a orientação do texto com o layout define se o texto é orientado de acordo com o layout e viewport em que é exibido.

Os objetos de anotação e hachura existentes em um desenho podem ser convertidos em anotativos em várias etapas. Isso pode ser útil para tornar anotativa a anotação em detalhes ou um modelo existente sem recriar a anotação ou objetos de hachura.
As etapas a seguir fornecem uma visão geral sobre como tornar anotativo um objeto não anotativo:

O desenho de amostra usado anteriormente já tinha escalas de anotação definidas para cada uma das viewports no layout SEÇÕES E DETALHES que coincidem com a escala de cada viewport. Quando você cria uma nova viewport e define sua escala, a escala de anotação é automaticamente definida para coincidir com a escala da viewport. Se as duas escalas não coincidirem, será possível clicar no botão Sincronização de escala da viewport () para coincidir a escala de anotação com a escala da viewport. O botão Sincronização de escala da viewport fica azul quando as duas escalas coincidem. Para obter mais informações sobre como criar e dimensionar viewports, consulte Você já experimentou: Pré-dimensionar viewports de layout.

Se você trabalha com vistas de corte ou de elevação e detalhes em várias escalas, os objetos anotativos e a escala de anotação podem simplificar a anotação dos projetos. Isso é demonstrado pela facilidade com que a anotação é exibida no tamanho correto, independentemente da escala atribuída a uma viewport.
Veja os comandos e as variáveis de sistema relacionados aos objetos anotativos e à escala de anotação em um desenho.
| Comando | Descrição |
|---|---|
| RESTAURARANOT | Reinicializa as localizações de todas as representações de escala alternativas dos objetos anotativos selecionados. |
| ATUALIZANOT | Atualiza os objetos anotativos existentes para corresponder às propriedades atuais de seus estilos. |
| ESCALAOBJETO | Adiciona ou exclui escalas suportadas para objetos anotativos. |
| EDITARLISTAESCALAS | Controla a lista de escalas disponíveis para viewports de layout, layouts de página e plotagem. |
| Variável de sistema | Descrição | Valor padrão | Salvo em |
|---|---|---|---|
| ANNOALLVISIBLE | Oculta ou exibe os objetos anotativos que não suportam a escala de anotação atual. | 1 | Desenho |
| ANNOAUTOSCALE | Atualiza os objetos anotativos para suportarem a escala de anotação quando ela for mudada. | -4 | Registro |
| ANNOSCALEZOOM | Determina se o zoom da roda do mouse nas viewports do espaço do papel é controlado pelas escalas de zoom específicas ou se é independente das escalas da viewport (comportamento herdado). | 0 | Registro |
| ANNOTATIVEDWG | Especifica se o desenho se comportará ou não como um bloco anotativo quando inserido em outro desenho. | 0 | Desenho |
| CANNOSCALE | Define o nome da escala de anotação atual para o espaço atual. | 1:1 | Desenho |
| CANNOSCALEVALUE | Exibe o valor da escala de anotação atual. | 1,0000 | Desenho |
| DIMANNO | Indica se o estilo de cota atual é ou não anotativo. | 0 | Desenho |
| HPANNOTATIVE | Controla se os novos padrões de hachura são anotativos nesta sessão. | 0 | Não salvo |
| SAVEFIDELITY | Controla a fidelidade visual dos objetos anotativos no AutoCAD 2007 e versões anteriores. | 1 | Registro |
| SELECTIONANNODISPLAY | Controla se as representações de escala alternativas são temporariamente exibidas em um estado esmaecido quando um objeto anotativo é selecionado. | 1 | Registro |