Neste exercício, você vai criar um telhado plano usando o perímetro das paredes externas e um telhado inclinado com uma saliência na entrada.
|
Categoria
|
Novos usuários
|
|
Tempo necessário
|
10 minutos
|
|
Arquivos de tutorial usados
|
GSG_05_add_roof.rvt
|
|
Antes de começar, faça o download do arquivoGSG_05_add_roof.rvt. Faça o download deste arquivo zip (se o download dos arquivos dos exercícios dos tutoriais ainda não tiver sido feito).
Objetivos
- Adicionar linhas do telhado com uma inclinação e uma saliência definida.
- Adicionar um telhado plano.
- Anexar paredes internas ao piso.
Assista ao vídeo
Desenhar o telhado
- Abra o projeto GSG_05_add_roof.rvt.
- Abra a planta de piso 02 – Parapeito inferior.
- Clique na guia Arquitetura
menu suspenso Telhado
(Telhado por perímetro).
- Crie um telhado inclinado com uma saliência:
- No painel Desenhar, clique em
(Selecionar paredes).
- Na barra de opções, para Saliência, insira 600 e selecione Define a inclinação.
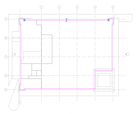
- Na área de desenho, realce uma parede de entrada. Quando uma linha tracejada for exibida na parte externa da parede, pressione Tab para selecionar a cadeia de paredes e clique para inserir as linhas do telhado.
- Na paleta Propriedades, defina o Nível base como 03 – Parapeito superior.
- No painel Modo, clique em
(Concluir) para inserir o telhado.
- Clique em Modificar para encerrar o comando.
- Desenhe um telhado plano:
- Na paleta Propriedades, defina o valor de subjacência como 01 – Piso da loja.
- Clique na guia Arquitetura
menu suspenso Telhado
(Telhado por perímetro).
- No painel Desenhar, clique em
(Selecionar paredes).
- Na barra de opções, defina Saliência como 0 e desmarque Define a inclinação.
- Na paleta Propriedades, defina Deslocamento da base do nível como -750.
- Na área de desenho, faça o seguinte:
- Realce uma parede externa.
- Pressione Tab para selecionar a cadeia de paredes.
- Clique para inserir as linhas do telhado.
- No painel Modo, clique em
(Concluir).
Parte 6: Colocando portas