您是否经常需要以多个比例输出图形,或者您的图形是否包含具有多个比例的视口?
高效设计可能需要花费一些时间和规划。随着所处理的图形变得越来越大和复杂,您可能需要绘制更多剖面视图和立面视图以及连接和基础详细信息。这些设计图元通常利用可重复使用的内容,可能要求它们根据图形以不同比例显示。
有三种不同的方法可用于以不同比例显示注释对象:
图层是管理以多个比例显示的注释对象可见性的常用方法。例如,A-DETL-DIMS 图层通常可能会用于所有标注。如果您需要以多个比例显示的标注,则应该将比例因子值添加到图层名称的末尾,例如 A-DETL-DIMS-24 和 A-DETL-DIMS-48 分别对应于 1/2"=1'-0" 和 1/4"=1'-0"。
在已定义多个图层的情况下,应该控制图层的可见性以显示对应于视口比例的标注。例如,如果视口的比例为 1/2”=1'-0” (1/24),则应该解冻图层 A-DETL-DIMS-24 并冻结图层 A-DETL-DIMS-48。
在上图中,A-DETL-DIMS-48 图层在左侧解冻,而 A-DETL-DIMS-24 图层在右侧解冻;两个图层在中间都解冻。
注释性对象是以一个或多个不同比例表示的注释,而不是单独的注释对象,可以更改其高度/比例或冻结/解冻其指定的图层以控制视口中的最终大小和可见性。注释性样式与非注释性样式类似,不同之处在于注释性样式管理注释性对象的创建,该创建控制注释对象的最终高度/比例的计算方式。
以下注释对象可以是注释性的:
下面是一个使用具有两个不同比例的注释性对象的模型示例:1/4"=1'-0" 和 1/2"=1'-0"。
当模型显示在视口中时,视口的比例控制显示注释性对象的表示。如果视口的比例与视口中注释性对象的比例不匹配,则不会显示这些注释性对象。在上图中,为文字、标注和多重引线对象指定了比例 1/4”=1'-0” 和 1/2”=1'-0”。这就是并非所有注释都同时显示或完全显示在视口中的原因;前两个视口指定的比例与注释性对象的比例相匹配,而第三个视口有不同比例。
在学习如何创建和修改注释性对象之前,让我们先了解一下注释性对象在视口中的工作方式。在本练习中,将在样例图形中输入现有视口,然后更改视口的比例,这也会更改注释比例。在更改比例后,图形中的对象将按比例显示,并且仅与该比例匹配的每个注释性对象的表示才可见。与新比例不匹配的每个注释性对象的表示将不可见。
有关从何处下载数据集,请参见本主题前面的“为练习做准备”部分。


视口的边界现在应该更厚,以反映模型空间现在处于活动状态。
此标记光标指示注释是注释性的。

必须先解锁视口,然后才能更改其比例。


请注意,在更改视口比例后,视图会缩小,可见的注释也会发生更改。注释比例为“1/4"=1'-0"”的注释性对象现在可见,而注释比例为“1/2"=1'-0"”的注释性对象可见。

视口的上一比例将恢复,注释比例为“1/2"=1'-0"”的注释性对象的可见性也将恢复。
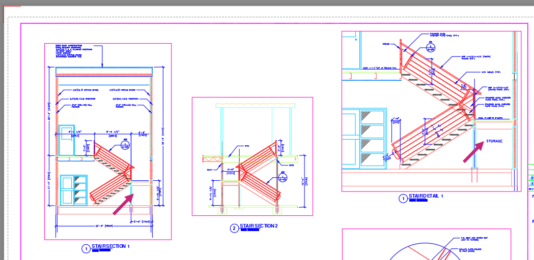
在本练习中,您了解了如何使用注释性对象来控制视口中注释的可见性和高度/比例。在接下来的部分中,您将了解如何创建注释性文字并控制其在“STAIR DETAIL 1”和“STAIR SECTION 1”视口中的可见性。
尽管创建注释性文字、标注、图案填充等的工作流都类似,但本文仅着重介绍如何创建注释性多行文字。创建注释性文字和非注释性(常规)文字类似;除了使用注释性文字样式和要创建的文字的最终高度之外。文字高度的计算基于文字显示比例。
以下内容说明了如何根据选择使用非注释性文字还是注释性文字,来计算要放置在模型空间中的文字高度:
手动计算文字高度。例如,如果要在以“1/2"=1'-0"”比例(因子为 24)缩放的视口中显示图纸文字高度为“1/16"”(0.0625) 的文字,则应该创建高度为“1 1/2"”的文字。
0.0625 x 24 = 1.5
AutoCAD 将根据提供的图纸文字高度和指定的注释比例,自动计算文字并以所需高度显示文字。
以下步骤说明了如何创建注释性多行文字 (MText):
有关从何处下载数据集,请参见本主题前面的“为练习做准备”部分。









您应该会在标有“STAIR DETAIL 1”的视口中看到新的多行文字对象,因为其指定的比例为“1/2"=1'-0"”。文字不会显示在“STAIR SECTION 1”视口中,因为其指定的比例为“1/4"=1'-0"”。

在下一部分中,您将了解如何将注释比例添加到注释性对象,这也将允许文字显示在比例为“1/4"=1'-0"”的“STAIR SECTION 1”视口中。
在创建注释性对象后,可以向对象添加其他注释比例或删除不再需要的比例。新的注释比例会影响对象在模型空间和布局视口中的显示方式。
以下步骤说明了如何将注释比例添加到在上一练习中创建的注释性多行文字对象:



您应该会注意到,多行文字对象现在显示在“STAIR SECTION 1”视口中,并根据视口比例“1/4"=1'-0"”,以“1/16"”图纸文字高度显示。

虽然注释性对象会与任何其他对象一样放置在图层上,但最好将它们放置在自己的图层上,并使用模型空间或布局视口中的当前注释比例控制其可见性。状态栏上的“注释可见性”按钮 ( 查找) 控制是显示所有注释性对象(而不管指定给它们的比例如何),还是仅显示与当前注释比例匹配的注释性对象。
以下步骤演示了如何使用“注释可见性”按钮:
您应该会注意到所有注释对象都已消失不见。

请注意,现在只有具有匹配注释比例的注释性对象才会显示在图形中。
无论当前注释比例如何,所有注释性对象都应该再次可见。
将注释比例添加到注释性对象时,将创建并维护该对象的新表示。可以通过选择注释性对象,来查看这些表示之一。例如,下图显示了指定了注释比例“1/4"=1'-0"”和“1/2"=1'-0"”的多重引线,图形的当前注释比例设置为“1/4"=1'-0"”。
尽管可以查看选定注释性对象的所有表示,但只能通过夹点编辑来修改与当前注释比例匹配的表示。标准编辑命令(例如,MOVE 和 SCALE)不能用于修改注释性对象的表示。
要重置注释性对象的所有表示,请执行以下操作:
创建注释性文字不需要注释性文字样式,但注释性文字样式确实有助于简化该过程,与其非注释性文字样式的对应项非常相似。注释性文字样式和非注释性文字样式之间的主要区别在于“注释性”特性。当“注释性”特性处于启用状态且该样式为当前样式时,创建的任何文字都是注释性的。“图纸文字高度”特性指定文字的最终文字高度,而“使文字方向与布局匹配”特性定义文字是否定向到显示文字的布局和视口。

可以通过几个步骤使图形中的现有注释和图案填充对象成为注释性对象。这有助于使现有模型或详图中的注释成为注释性对象,而无需重新创建注释或图案填充对象。
下列步骤概述了如何使非注释性对象成为注释性对象:

之前使用的样例图形已为“SECTIONS AND DETAILS”布局上的每个视口都设置了与每个视口的比例匹配的注释比例。当创建新视口并设置其比例时,注释比例将自动设置为与视口比例匹配。如果两个比例不匹配,可以单击“视口比例同步”按钮,以将注释比例与视口比例匹配。当两个比例匹配时,“视口比例同步”按钮为蓝色。有关如何创建和缩放视口的详细信息,请参见您尝试过吗:预缩放布局视口。

如果使用剖面视图或立面视图以及多个比例的详图,则注释性对象和注释比例可以简化对设计的注释。这一点可以通过轻松确保注释能够以正确大小显示(无论指定给视口的比例如何)得到证实。
以下是与图形中注释性对象和注释比例相关的命令和系统变量。
| 命令 | 说明 |
|---|---|
| ANNORESET | 重置选定注释性对象的所有换算比例图示的位置。 |
| ANNOUPDATE | 更新现有注释性对象,使之与其样式的当前特性相匹配。 |
| OBJECTSCALE | 为注释性对象添加或删除支持的比例。 |
| SCALELISTEDIT | 控制可用于布局视口、页面布局和打印的缩放比例的列表。 |
| 系统变量 | 说明 | 默认值 | 保存位置 |
|---|---|---|---|
| ANNOALLVISIBLE | 隐藏或显示不支持当前注释比例的注释性对象。 | 1 | 图形 |
| ANNOAUTOSCALE | 更改注释比例时,将更新注释性对象以支持注释比例。 | -4 | 注册表 |
| ANNOSCALEZOOM | 确定图纸空间视口中的鼠标滚轮缩放是由特定缩放比例控制还是独立于视口比例(传统行为)。 | 0 | 注册表 |
| ANNOTATIVEDWG | 指定图形插入其他图形是否表现为注释性块。 | 0 | 图形 |
| CANNOSCALE | 为当前空间设置当前注释比例的名称。 | 1:1 | 图形 |
| CANNOSCALEVALUE | 显示当前注释比例的值。 | 1.0000 | 图形 |
| DIMANNO | 指示当前标注样式是否为注释性样式。 | 0 | 图形 |
| HPANNOTATIVE | 控制新填充图案在此会话中是否为注释性。 | 0 | 不保存 |
| SAVEFIDELITY | 在 AutoCAD 2007 及更早版本中控制注释性对象的视觉逼真度。 | 1 | 注册表 |
| SELECTIONANNODISPLAY | 控制选定注释性对象后,备用比例图示是否暂时以暗显状态显示。 | 1 | 注册表 |