使用“风管”选项编辑风管的高程和尺寸标注。
通过添加设备、创建逻辑系统及添加风管以创建物理系统来创建风管系统。
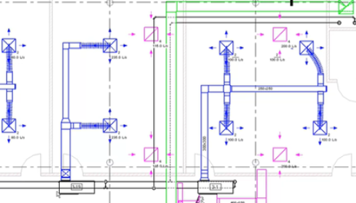
捕捉到现有管网时,可使用“继承大小”和“继承高程”工具来匹配风管尺寸和高程。
压力报告评估系统,并提供系统图元的损失系数。
使用占位符风管指示风管管路的大概位置。
分割 MEP 系统可以提高 Revit 中的系统性能。
使用“修改风管”面板,可以向一段风管或整个管路添加隔热层和内衬。
使用计算附加模块计算管道或风管压降。
向模型添加线管以创建电力系统。
平行于现有线管管路放置线管。
编辑线路路径以创建准确的电气系统计算。
在 P&ID 模型转换中定义模型设置和管理映射。
设置 P&ID 标记、映射图元并将管段添加到模型。
使用 Revit 中的工具来创建反映 MEP 预制意图的模型,以便可以与施工详图设计员共享该模型。
创建 MEP 预制模型时,可以使用调节阀专用的画布内控件添加、删除或旋转整个调节阀叶片。
在模型中放置支架,并使用控件来避免与其他 MEP 图元发生冲突。
利用“属性”选项板或“编辑零件”工具修改连接的预制零件的尺寸。
将包含 Revit MEP 图元的设计模型转换为包含 LOD 400 MEP 预制构件的 MEP 预制模型。
使用“修剪/延伸”、“快速连接”或“布线填充”来填充管道、风管或电气保护层的预制模型的间隙。
单击模型中的点,创建一段连接的 MEP 预制构件。
“空间命名”工具将名称和编号从建筑房间指定到用于建筑性能分析的 MEP 空间。