在本練習中,您要在專案的不同樓層加入外牆、室內牆和迴廊。
|
品類
|
新使用者
|
|
所需時間
|
15 分鐘
|
|
使用的自學課程檔案
|
GSG_02_Create_Walls.rvt
|
|
開始之前,請先下載 GSG_02_Create_Walls.rvt 資料檔案。下載此 ZIP 檔案 (如果您尚未下載自學課程的練習檔案)。
目標
- 使用選取的點透過繪製方式加入外牆。
- 使用「牆」工具,在較低樓層中加入室內牆。
- 使用「修剪/延伸」工具建立迴廊的開口。
觀看影片
修改外牆
- 使用 3D 視圖,選取建築物轉角的牆。使用包含窗選,然後按住 Ctrl 以便對選取項目加入牆。
- 在「性質」選項板上,對於「頂部約束」,選取「04 - Upper Parapet」,然後按一下「套用」。
- 按 Esc 除選牆。
- 選取建築物右前角的兩面牆。在「性質」選項板上,將「基準偏移」設定為 4250mm。
- 在「類型選取器」上,將牆類型變更為「Exterior - Render on Brick on Block @ Entry」。
加入室內牆
- 在專案瀏覽器中的「樓板平面圖」下,按兩下「01 - Store Floor」。
- 按一下「建築」頁籤
「建立」面板
(牆)。
- 在「類型選取器」中,選取「Interior - 138mm Partition (1- hr)」。
- 在選項列上:
- 對於「高度」,選取「03 - Lower Parapet」。
- 對於「定位線」,選取「牆中心線」。
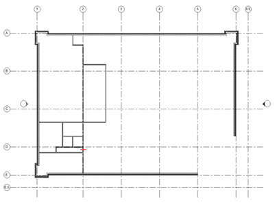
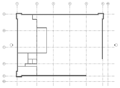
- 使用下圖做為指南,放置室內牆以建立房間:
- 放置位置是否精確並不重要。
- 配置牆時,啟用或停用「鏈」選項可能會有幫助。鏈能讓您從一端到另一端放置多面牆。如果停用「鏈」,每面牆都必須指定兩個端點。請使用兩種設定試試。
- 修改牆來建立迴廊:
- 按一下
(修改) 以完成指令。
第 3 部分:建立地形和敷地建板