在本練習中,您要建立剖面視圖、外牆的圖說視圖和矮牆的詳圖圖說。
|
開始之前,請先下載 GSG_10_views.rvt 檔案。下載此 ZIP 檔案 (如果您尚未下載自學課程的練習檔案)。
目標
「建立」面板
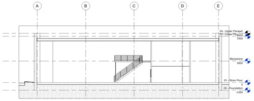
(剖面)。

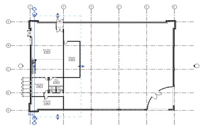
) 翻轉剖面,讓它包含儲藏室 #103。
),循環檢視剖面線末端選項,並顯示頂端及底端的剖面線標頭。


(隱藏裁剪範圍)。
「建立」面板
(圖說)。

(隱藏裁剪範圍)。
(圖說)。

(隱藏裁剪範圍)。