在本練習中,您要在下方樓層的夾層中加入樓梯,然後修改夾層上的扶手來完成模型的內部。
|
品類
|
新使用者
|
|
所需時間
|
15 分鐘
|
|
使用的自學課程檔案
|
GSG_09_stairs_railings.rvt
|
|
開始之前,請先下載 GSG_09_stairs_railings.rvt 檔案。下載此 ZIP 檔案 (如果您尚未下載自學課程的練習檔案)。
目標
- 在儲藏室樓板與夾層之間建立一個樓梯。
- 修改樓梯扶手以包括夾層。
- 將扶手類型變更為管形扶手。
觀看影片
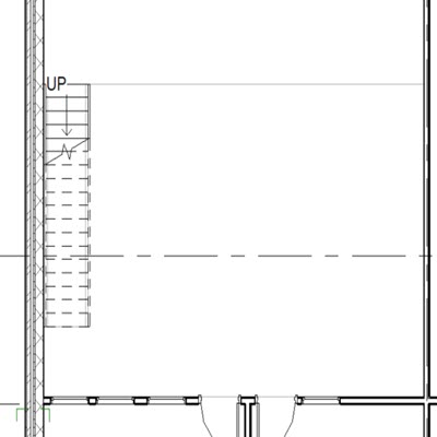
建立樓梯
- 開啟專案 GSG_09_stairs_railings.rvt。
- 請確認 01 - Store Floor 樓板平面圖是開啟的。
- 按一下「建築」頁籤
「通道」面板
(樓梯)。
- 在「性質」選項板的「約束」下:
- 對於「基準樓層」,選取「01 - Store Floor」。
- 對於「頂部樓層」,選取「Mezzanine」。
- 在選項列上,將定位線設定為「梯段: 左」。
- 在儲藏室中,按一下夾層參考底圖的角落來開始樓梯梯段。
- 向下移動游標,直到工具提示指出剩下 0 個豎板,然後按一下以指定樓梯終點。
- 在「模式」面板上,按一下
(完成編輯模式)。
修改扶手類型
- 在快速存取工具列上,按一下
(預設 3D 視圖)。
- 選取平屋頂,然後使用檢視控制列上的
(暫時隱藏/隔離),選取「隱藏元素」。
- 選取樓梯靠近牆那一側的扶手。
- 在類型選取器中,選取「900 mm Pipe Wall」。
- 在警告對話方塊中按一下「刪除類型」。
- 選取樓梯另一側的扶手。
- 在類型選取器中,選取「900 mm Pipe」。
第 10 部分:建立視圖