V tomto cvičení načtete do projektu typy dveří a pak přidáte do modelu vnitřní a vnější dveře.
|
Kategorie
|
Noví uživatelé
|
|
Potřebný čas
|
10 minut
|
|
Použité soubory výukových programů
|
GSG_06_place_doors.rvt, M_Door-Exterior-Double.rfa, M_Door-Overhead-Sectional.rfa, M_Door-Passage-Double-Flush-Dbl_Acting.rfa, M_Door-Passage-Single-Flush.rfa
|
|
Než začnete, stáhněte si soubory výukových programů GSG_06_place_doors.rvt, M_Door-Exterior-Double.rvt, M_Door-Overhead-Sectional, M_Door-Passage-Double-Flush-Dbl_Acting a M_Door-Passage-Single-Flush. Stáhněte si tento soubor ZIP (pokud jste ještě nestáhli soubory cvičení pro výukové programy).
Cíle
- Načíst rodiny dveří.
- Pomocí seznamu Výběr typu změnit typy dveří
- Umístit dveře do modelu
- Pomocí mezerníku změnit před umístěním dveří jejích otevírání.
- Pomocí
ovládacích prvků pro převrácení změnit po umístění dveří jejich orientaci
Zhlédnout video
Načtení rodin
- Otevřete projekt GSG_06_place_doors.rvt.
- Klikněte na kartu Vložit
panel Načíst z knihovny
(Načíst rodinu).
- V dialogu Načíst rodinu přejděte do složky, kam jste uložili soubory rodin pro toto cvičení.
- Podržte klávesu Ctrl, vyberte následující soubory a klikněte na tlačítko Otevřít.
- GSG_06_M_Door-Exterior-Double.rfa
- GSG_06_M_Door-Overhead-Sectional.rfa
- GSG_06_M_Door-Passage-Double-Flush-Dbl_Acting.rfa
- GSG_06_M_Door-Passage-Single-Flush.rfa
Umístění dveří
- V Prohlížeči projektu pod položkou Půdorysy podlaží dvakrát klikněte na položku 01 – Podlaží skladu.
- Klikněte na kartu Architektura
panel Sestavení
(Dveře).
- Ověřte, že je v seznamu Výběr typu vybrána položka M_Dveře, průchod, dvoukřídlé, hladké, oboustranné.
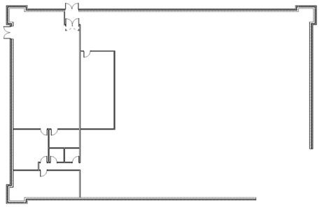
- Kliknutím umístěte dveře ke vchodu do místnosti skladu, jak je zde znázorněno.
- Pomocí nástroje Výběr typu vyberte položku M_Vnější dvojité dveře 1800 x 2000.
- Kliknutím umístěte dveře do dolních vnějších stěn, jak je zde znázorněno.
- Pomocí nástroje Výběr typu vyberte položku M_Dveře, průchod, jednokřídlé, hladké 900 x 200.
- Umístěte další dveře tak, jak je zde znázorněno.
Poznámka: Chcete-li při umisťování dveří změnit směr otevírání nebo stranu závěsů, stiskněte mezerník. Chcete-li změnit směr po umístění dveří, klikněte na
ovládací prvky pro převrácení.
- Pomocí nástroje Výběr typu vyberte položku M_Dveře, výsuvné, sekční a umístěte je do západní stěny místnosti skladu.
Část 7: Umístění oken