So verwenden Sie Ansichtsfenster im Modellbereich

So erstellen Sie mehrere Modellbereich-Ansichtsfenster

  1. Klicken Sie auf Menü Ansicht > Ansichtsfenster.
  2. Klicken Sie auf die Ansichtsfensterkonfiguration, die Sie verwenden möchten.

So legen Sie ein Modellbereich-Ansichtsfenster als aktuell fest

So wechseln Sie mit der Tastatur zwischen Ansichtsfenstern

Zurücksetzen des Modellbereichs auf ein einzelnes Ansichtsfenster

So verbinden Sie zwei Ansichtsfenster im Modellbereich

Anmerkung: Sie können nur dann zwei Ansichtsfenster miteinander verbinden, wenn diese eine gemeinsame Kante gleicher Länge haben.
  1. Klicken Sie auf Menü Ansicht > Ansichtsfenster > Verbinden.
  2. Klicken Sie im Modellbereich in das Ansichtsfenster, das Sie beibehalten möchten.
  3. Klicken Sie in ein benachbartes Ansichtsfenster, um es mit dem ersten Ansichtsfenster zu verbinden.
Tipp: Alternativ können Sie eine innere Umgrenzung eines Modellbereich-Ansichtsfensters ziehen und es so mit einem anderen Ansichtsfenster verbinden, das über eine gemeinsame Kante gleicher Länge verfügt.

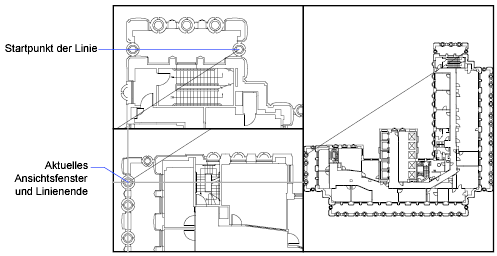
So zeichnen Sie über zwei Modellbereich-Ansichtsfenster

In einer großen Zeichnung können Sie mit dieser Methode eine Linie beginnend bei einem Detail in einer Ecke zu einem anderen Detail in einer entfernten anderen Ecke zeichnen.

  1. Beginnen Sie die Linie im aktuellen Ansichtsfenster.
  2. Legen Sie ein anderes Ansichtsfenster als aktuell fest, indem Sie darauf klicken, und geben Sie anschließend den zweiten Endpunkt der Linie an.