These tutorials walk you through the process of creating a simple building model using Revit, and introduce Revit user interface. Use the filter to narrow your search.
Video: Work with Parameters
Instance parameters and type parameters control aspects of all elements in a model.
Video: Create a Project and Add Levels
In part 1 of the tutorial, you start a project, and create levels for foundation, store floor, upper and lower parapets of the building model.
Video: Create Walls
In part 2 of the tutorial, you place exterior and interior walls and use the Trim/Extend tool to create an opening for a corridor.
Video: Create Terrain and Building Pad
In part 3 of the tutorial, you use the Toposolid tool to create a site and add fill with a building pad based on the exterior walls of the model.
Video: Create a Roof
In part 5 of the tutorial, you create a flat roof and a sloped roof with an overhang at the entry.
Video: Create a Floor
In part 4 of the tutorial, you create a mezzanine in the store room area of the building.
Video: Place Doors
In part 6 of the tutorial, you load a door family, change the door type, place a door, and change its orientation.
Video: Place Windows
In part 7 of the tutorial you place, duplicate, modify and align windows in a model.
Video: Create Views
In part 10 of the tutorial, you create a section view, a callout view of the exterior wall, and a detail callout of the wall.
Video: Add Notes
In part 12 of the tutorial, you place view-specific annotations in the model.
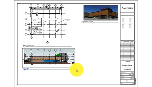
Video: Create Sheets
In part 13 of the tutorial, you create a sheet, add views, modify view placement, and modify title block format.
Video: Add Dimensions
In part 11 of the tutorial, you use dimensions to indicate the location of a feature wall, and to display building width and length.