¿Necesita generar a menudo dibujos a varias escalas o sus dibujos contienen ventanas con varias escalas?
El diseño eficiente puede requerir algo de tiempo y planificación. A medida que los dibujos en los que trabaje sean más grandes y complejos, es probable que tenga que dibujar más vistas en sección y de alzado junto con detalles de conexión y cimentación. Estos elementos de diseño utilizan a menudo contenidos reutilizables y pueden requerir que se muestren a diferentes escalas en función del dibujo.
Existen tres enfoques diferentes que pueden utilizarse para mostrar objetos de anotación a distintas escalas:
Las capas han constituido un enfoque habitual para gestionar la visibilidad de los objetos de anotación que se muestran a varias escalas. Por ejemplo, la capa A-DETL-DIMS podría utilizarse normalmente para todas las cotas. Si necesita cotas a varias escalas, añada el valor del factor de escala al final del nombre de la capa, como A-DETL-DIMS-24 y A-DETL-DIMS-48 para 1/2"=1'-0" y 1/4"=1'-0" respectivamente.
Con varias capas definidas, podrá controlar la visibilidad de las capas para mostrar las cotas correspondientes a la escala de la ventana gráfica. Por ejemplo, si la ventana gráfica presenta una escala de 1/2"=1'-0" (1/24), deberá reutilizar la capa A-DETL-DIMS-24 e inutilizar la capa A-DETL-DIMS-48.
En la imagen anterior, la capa A-DETL-DIMS-48 se reutiliza a la izquierda, mientras que la capa A-DETL-DIMS-24 se reutiliza a la derecha; ambas capas se reutilizan en el medio.
Los objetos anotativos son anotaciones con una o varias representaciones a escalas diferentes y no objetos de anotación independientes para los que se puede cambiar su altura/escala o inutilizar/reutilizar la capa asignada a fin de controlar el tamaño final y la visibilidad dentro de una ventana gráfica. Los estilos anotativos son similares a los estilos no anotativos, excepto en que administran la creación de objetos anotativos que controlan cómo se calcula la altura/escala final de un objeto de anotación.
Los siguientes objetos de anotación pueden ser anotativos:
A continuación se muestra un ejemplo de un modelo que utiliza objetos anotativos con dos escalas diferentes: 1/4"=1'-0" y 1/2"=1'-0".
Cuando el modelo se muestra en una ventana gráfica, su escala controla la representación del objeto anotativo que se muestra. Si la escala de una ventana gráfica no coincide con la de los objetos anotativos de la ventana gráfica, no se mostrarán esos objetos anotativos. En la imagen anterior, a los objetos de texto, cota y directriz múltiple se les asignan las escalas 1/4"=1'-0" y 1/2"=1'-0". Por este motivo, no todas las anotaciones se muestran al mismo tiempo o en una ventana gráfica; a las dos primeras ventanas gráficas se les asignan escalas que coinciden con las de los objetos anotativos, mientras que la tercera ventana gráfica presenta una escala diferente.
Para aprovechar al máximo los ejercicios de este tema, es necesario descargar un conjunto de datos. Este contiene archivos de dibujo seleccionados que ayudan a conocer los flujos de trabajo o las operaciones que se están demostrando.
Antes de aprender a crear y modificar objetos anotativos, vamos a entender cómo funcionan estos en las ventanas gráficas. En este ejercicio, introducirá una ventana gráfica existente en el dibujo de ejemplo y cambiará la escala de la ventana gráfica, lo que también cambiará la escala de anotación. Una vez que se hayan modificado las escalas, los objetos del dibujo aparecerán a escala y solo estarán visibles las representaciones de cada objeto anotativo que coincida con la escala. Las representaciones de cada objeto anotativo que no coincidan con la nueva escala serán invisibles.
Consulte la sección Preparación para los ejercicios anterior en este tema para obtener información sobre la ubicación desde la que se debe descargar el conjunto de datos.


El borde de la ventana gráfica debería ser ahora más grueso para reflejar que el espacio modelo está activo.
Este cursor de distintivo indica que la anotación es anotativa.

La ventana gráfica debe desbloquearse antes de poder cambiar su escala.


Observe que, después de cambiar la escala de la ventana gráfica, se ha reducido la vista y se ha modificado la anotación visible. Los objetos anotativos con una escala de anotación de 1/4"=1'-0" ahora son visibles, mientras que los que presentan una escala de anotación de 1/2"=1'-0" son invisibles.

La escala anterior de la ventana gráfica se restaura junto con la visibilidad de los objetos anotativos con una escala de anotación de 1/2"=1'-0".
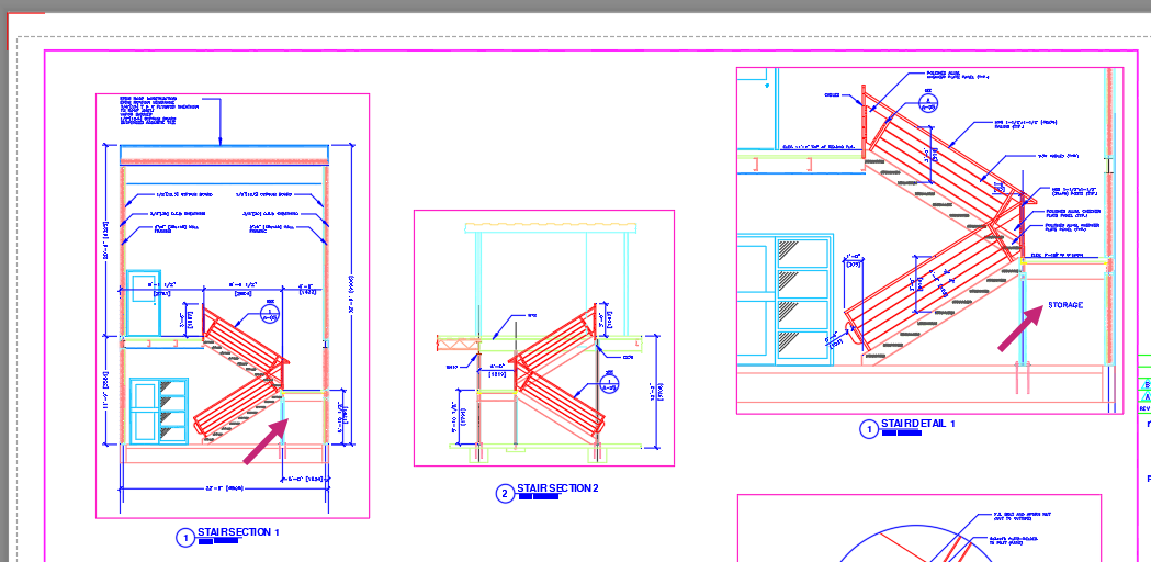
En este ejercicio, ha visto cómo se pueden utilizar los objetos anotativos para controlar la visibilidad y la altura/escala de la anotación en una ventana gráfica. En las secciones siguientes, aprenderá a crear texto anotativo y a controlar su visibilidad en las ventanas gráficas STAIR DETAIL 1 y STAIR SECTION 1.
Aunque el flujo de trabajo para crear texto anotativo, cotas y sombreado, entre otros, es similar, este artículo solo se centra en la creación de texto anotativo de líneas múltiples. La creación de texto anotativo y no anotativo (normal) es similar, excepto en el caso del uso de un estilo de texto anotativo y la altura final del texto que se va a crear. La altura del texto se calcula en función de la escala con la que se mostrará el texto.
A continuación, se explica cómo se calcula la altura del texto para su colocación en el espacio modelo según si se ha elegido utilizar texto anotativo o no anotativo.
La altura del texto se calcula manualmente. Por ejemplo, si desea mostrar texto con una altura de texto en papel de 1/16" (0.0625) en una ventana gráfica con una escala de 1/2"=1'-0" (factor de 24), debe crear el texto con una altura de 1 1/2".
0.0625 x 24 = 1.5
AutoCAD calcula y muestra automáticamente el texto a la altura necesaria en función de la altura de texto en papel y la escala de anotación asignadas.
En los siguientes pasos, se explica cómo crear texto de líneas múltiples anotativo (textoM):
Consulte la sección Preparación para los ejercicios anterior en este tema para obtener información sobre la ubicación desde la que se debe descargar el conjunto de datos.









Debería ver el nuevo objeto de textoM en la ventana gráfica denominada STAIR DETAIL 1, ya que tiene asignada la escala 1/2"=1'-0". El texto no se mostrará en la ventana gráfica STAIR SECTION 1, ya que se le ha asignado la escala 1/4"=1'-0".

En la siguiente sección, aprenderá a añadir una escala de anotación a un objeto anotativo, lo que también permitirá que el texto se muestre en la ventana gráfica STAIR SECTION 1 a una escala de 1/4"=1'-0".
Una vez creado un objeto anotativo, puede añadir escalas de anotación adicionales al objeto o eliminar escalas que ya no sean necesarias. Las nuevas escalas de anotación afectan a la forma en que el objeto aparece en el espacio modelo y en las ventanas gráficas de una presentación.
En los pasos siguientes, se explica cómo añadir escalas de anotación al objeto de textoM anotativo creado en el ejercicio anterior:



Observará que el objeto de textoM ahora aparece en la ventana gráfica STAIR SECTION 1 y se muestra a una altura de texto en papel de 1/16" en función de la escala de la ventana gráfica de 1/4"=1'-0".

Aunque los objetos anotativos se colocan en capas como cualquier otro objeto, es mejor colocarlos en sus propias capas y controlar su visibilidad mediante la escala de anotación actual en el espacio modelo o la ventana gráfica de una presentación. El botón Visibilidad de anotación ( Buscar) de la barra de estado controla si se muestran todos los objetos anotativos, independientemente de las escalas asignadas a ellos, o solo aquellos que coincidan con la escala de anotación actual.
En los siguientes pasos, se muestra el uso del botón Visibilidad de anotación:
Observará que han desaparecido todos los objetos de anotación.

Observe que ahora solo se muestran en el dibujo los objetos anotativos con una escala de anotación coincidente.
Todos los objetos anotativos deberían estar visibles de nuevo, independientemente de la escala de anotación actual.
Cuando se añade una escala de anotación a un objeto anotativo, se crea y se mantiene una nueva representación de ese objeto. Puede ver cada una de estas representaciones mediante la selección de un objeto anotativo. Por ejemplo, en la imagen siguiente, se muestra una directriz múltiple asignada a las escalas de anotación de 1/4"=1'-0" y 1/2"=1'-0" con la escala de anotación actual del dibujo establecida en 1/4"=1'-0".
Aunque puede ver todas las representaciones de un objeto anotativo cuando está seleccionado, solo puede modificar la representación que coincida con la escala de anotación actual mediante la edición con pinzamientos. Los comandos de edición estándar, como DESPLAZA y ESCALA, no se pueden utilizar para modificar las representaciones de un objeto anotativo.
Para restablecer todas las representaciones de un objeto anotativo, realice lo siguiente:
Los estilos de texto anotativo no son necesarios para crear texto anotativo, pero ayudan a simplificar el proceso de forma similar a sus equivalentes de estilo de texto no anotativo. La diferencia principal entre los estilos de texto anotativo y no anotativo es la propiedad Anotativo. Cuando la propiedad Anotativo está activada y el estilo es el actual, cualquier texto que se cree será anotativo. La propiedad Altura de texto en papel especifica la altura final del texto, mientras que la propiedad Igualar orientación de texto con la presentación define si el texto se orienta según la presentación y la ventana gráfica en la que se muestra.

Los objetos de anotación y sombreado existentes en un dibujo se pueden convertir en anotativos con varios pasos. Esto puede resultar útil para convertir la anotación en un modelo existente o para que los detalles sean anotativos sin necesidad de volver a crear los objetos de anotación o sombreado.
En los pasos siguientes, se proporciona una descripción general de cómo convertir un objeto no anotativo en anotativo:

El dibujo de ejemplo utilizado anteriormente ya presentaba escalas de anotación establecidas para cada una de las ventanas gráficas de la presentación SECCIONES Y DETALLES que coinciden con la escala de cada ventana gráfica. Al crear una nueva ventana gráfica y definir su escala, la escala de anotación se establece automáticamente para que coincida con la escala de la ventana gráfica. Si las dos escalas no coinciden, puede hacer clic en el botón Sincronización de escala de ventana gráfica () para que la escala de anotación coincida con la de la ventana gráfica. El botón Sincronización de escala de ventana gráfica aparece en azul cuando coinciden las dos escalas. Para obtener más información sobre la creación y el ajuste de escala de ventanas gráficas, consulte ¿Ha probado?: ajuste previo de escala de las ventanas gráficas de presentación.

Si trabaja con vistas en sección o de alzado y detalles en varias escalas, los objetos anotativos y la escala de anotación pueden simplificar la anotación de los diseños. Prueba de ello es lo fácil que puede resultar garantizar que las anotaciones se muestren con el tamaño correcto, independientemente de la escala asignada a una ventana gráfica.
A continuación, se indican los comandos y las variables de sistema relacionados con los objetos anotativos y las escalas de anotación de un dibujo.
| Comando | Descripción |
|---|---|
| RESTABANOT | Restablece la ubicación de todas las representaciones a escala alternativas de los objetos anotativos seleccionados. |
| ACTUALANOT | Actualiza los objetos anotativos existentes para que coincidan con las propiedades actuales de sus estilos. |
| ESCALAOBJETO | Añade o suprime escalas compatibles para objetos anotativos. |
| EDITARLISTAESCALAS | Controla la lista de escalas disponibles para las ventanas gráficas de presentación, las presentaciones de página y el trazado. |
| Variable de sistema | Descripción | Valor por defecto | Se ha guardado en |
|---|---|---|---|
| ANNOALLVISIBLE | Oculta o muestra los objetos anotativos que no son compatibles con la escala de anotación actual. | 1 | Dibujo |
| ANNOAUTOSCALE | Actualiza los objetos anotativos que son compatibles con la escala de anotación al modificar la escala de anotación. | −4 | Registro |
| ANNOSCALEZOOM | Determina si el zoom de la rueda del ratón en las ventanas gráficas del espacio papel se controla mediante escalas de zoom específicas o es independiente de las escalas de ventanas gráficas (comportamiento original). | 0 | Registro |
| ANNOTATIVEDWG | Especifica si el dibujo actuará o no como un bloque anotativo al insertarlo en otro dibujo. | 0 | Dibujo |
| CANNOSCALE | Establece el nombre de la escala de anotación actual en el espacio actual. | 1:1 | Dibujo |
| CANNOSCALEVALUE | Muestra el valor de la escala de anotación actual. | 1.0000 | Dibujo |
| DIMANNO | Indica si el estilo de cota actual es o no anotativo. | 0 | Dibujo |
| HPANNOTATIVE | Determina si los patrones de sombreado nuevos son anotativos en esta sesión. | 0 | Sin guardar |
| SAVEFIDELITY | Controla la fidelidad visual de los objetos anotativos de AutoCAD 2007 y versiones anteriores. | 1 | Registro |
| SELECTIONANNODISPLAY | Controla si las representaciones de escala alternativas se muestran temporalmente difuminadas cuando se selecciona un objeto anotativo. | 1 | Registro |