Exercice LiveView : fusion de vecteurs

Dans cet exercice, vous allez mettre à jour un dessin et fusionner des données vectorielles nouvelles avec des données raster existantes.

Remarque : Les exemples de fichiers du guide de mise en route peuvent être téléchargés à partir de l'adresse https://www.autodesk.com/raster_design_getting_started_guide. Téléchargez et extrayez les fichiers d'exemple sur votre poste de travail pour les utiliser dans cet exercice.
Pour fusionner des vecteurs dans des données raster
1

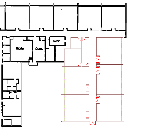
Ouvrez le fichier d'exemple LiveView_Merge.dwg.

Le dessin d'une école s'affiche. Les données raster de couleur blanche correspondent à l'édifice d'origine, tandis que les données vectorielles colorées correspondent aux salles de classe qui ont été ajoutées.

2 Sur le ruban, cliquez sur l'onglet Outils Raster groupe de fonctions Modifier (développé) Plume raster pour ouvrir la boîte de dialogue Paramètres de plume Raster.
3

Sélectionnez la couleur de plume rouge, réglez l'épaisseur sur 1 pixel, puis cliquez sur OK.

Avec ce réglage, les portes sont tracées à l'aide de lignes raster plus fines que celles des murs.

4

Sur le ruban, cliquez sur l'onglet Outils Raster groupe de fonctions Modifier (développé) Fusionner le vecteur. Sélectionnez les objets qui constituent les nouvelles salles de classe en dessinant une fenêtre autour d'eux et sélectionnez le cadre de l'image raster, puis cliquez avec le bouton droit de la souris pour mettre fin à la sélection.

Remarque : Si vous ne pouvez pas sélectionner le cadre de l'image raster, cliquez sur l'onglet Outils raster groupe de fonctions Gérer et afficher Activer/désactiver les cadres.

Appuyez sur la touche ENTREE pour accepter le paramètre par défaut, qui consiste à supprimer les vecteurs après la fusion. Si vous êtes invité à continuer, cliquez sur Oui.

Les données vectorielles sont fusionnées avec les données raster.